Projekt domu BARBADOS 2 dom letniskowy
- Typ projektuLetniskowy
- Powierzchnia użytkowa68.09 m²
- Kondygnacje
- GarażBez garażu
- DachDwuspadowy
- Kąt nach. dachu30°
- Odbicie lustrzaneTak
- Czas realizacjido 10 dni roboczych Zobacz więcej >
Opis
Zgodność z WT 2021 i Eurokodami
Ze względu na dostosowywanie projektu do standardu WT 2021, czas realizacji może się różnić od standardowego.
Skontaktuj się z nami aby poznać szczegóły dotyczące wybranego projektu.
Opis projektu
BARBADOS 2 – dom letniskowy Projekt dostępny również jako CAŁOROCZNY!!!
Zobacz czym różni się projekt domku letniskowego od domu całorocznego?
Barbados 2 to przemyślanie zaprojektowane dzieło architektoniczne, które łączy praktyczne zalety z elegancją i prostotą. Wnętrze wyróżnia uporządkowany układ pokoi, na który składają się powiększone w stosunku do Barbados 1 pomieszczenia, takie jak salon, pokój gościnny z kuchnią, dwa pokoje oraz łazienka. Na zewnątrz świetnym i niezwykle użytecznym pomysłem jest zadaszony taras, z pewnością będzie on miejscem niejednej udanej biesiady, spotkania, każdego miłego wieczoru.
Zobacz projekt Barbados bez wiaty.
Projekt składa się z części architektonicznej, konstrukcyjnej, wewnętrznych instalacji wod.-kan, c. o. i elektrycznej. W projekcie załączone są podstawowe zestawienie stali, drewna i stolarki okienno-drzwiowej. Do projektu dołączamy bezpłatną zgodę na wprowadzenie zmian, oświadczenie projektantów o wykonaniu projektu zgodnie z obowiązującymi normami i przepisami oraz kserokopie uprawnień projektantów wraz z aktualnym wpisem do izby. W przypadku zamówienia projektu w technologii lekkiej, drewnianej konstrukcji szkieletowej, powierzchnia użytkowa budynku jest o około 7% większa.
Konstrukcja
- powierzchnia zabudowy - 81,60m2
- kubatura - 519,60m3
- ściany zewnętrzne murowane grubości 30 cm
- ściany wewnętrzne działowe gr. 12 cm
- wszystkie ściany wykonane z pustaków ceramicznych "POROTHERM"
- konstrukcja więźby dachowej drewniana w formie wiązerów kratowych
- pokrycie dachówka ceramiczna
- projekt posiada kominek
- instalacja grzewcza: kocioł gazowy w łazience
Rzuty
Rzut przyziemia
- 1. Wiatrołap5.55
- 2. Komunikacja6.15
- 3. Pokój10.34
- 4. Pokój13.12
- 5. Łazienka7.21
- 6. Pokój17.55
- 7. Kuchnia8.17
- 8. Weranda35.51
- 9. Wiata16.93
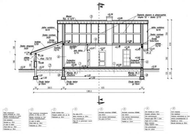
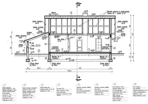
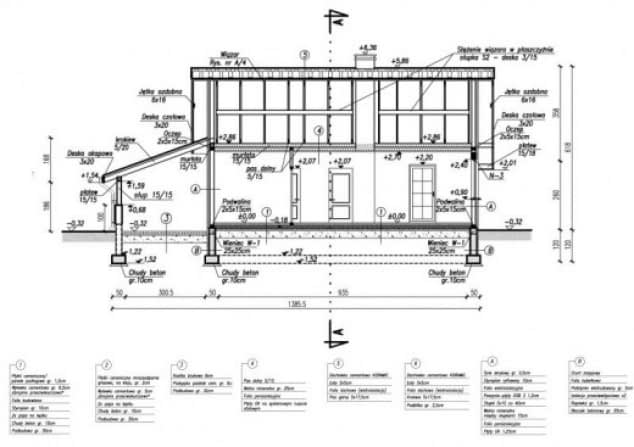
Przekrój A-A
Przekrój B-B
Dane techniczne
- Powierzchnia użytkowa68.09 m²
- Powierzchnia zabudowy81.6 m²
- Liczba pokoi8
- Powierzchnia dachu176.2 m²
- Kubatura519.6 m³
- Wysokość domu6.18 m
- Minimalne wymiary działki20.65 x 16m
- GarażBez garażu
- Rodzaj dachuDwuspadowy
- Kąt nach. dachu30°
Zawartość projektu
Projekty są dostępne w wersji książkowej, drukowanej w tak zwanym w nowym trybie 3 egzemplarze projektu architektoniczno-budowlanego oraz 3 egzemplarze projektu technicznego. Na życzenie przesyłamy rzuty i przekroje wersji podstawowych dokumentacji w formacie PDF
Każdy projekt architektoniczno-budowlany domu składa się z następujących części:
- strona tytułowa,
- oświadczenie
- część opisowa projektu architektoniczno-budowlanego,
- projektowana charakterystyka energetyczna z analizą,
- część rysunkowej projektu architektoniczno-budowlanego,
- zaświadczenia i uprawnienia.
Każdy projekt techniczny domu składa się z:
- strony tytułowej,
- oświadczenia,
- części opisowej projektu technicznego,
- części rysunkowej projektu technicznego,
- części konstrukcyjnej,
- zaświadczenia i uprawnień,
- zestawień drewna i stali,
-instalacji elektrycznej i odgromowej,
-instalacji sanitarnych, gazowych i centralnego ogrzewania.
Do projektu na życzenie dołączamy obliczenia statyczno-wytrzymałościowe.
Inwestor otrzymuje 3 opieczętowane sztuki projektu architektoniczno-budowlanego oraz 3 egzemplarze projektu technicznego tworzące komplet, każdy z plombą zabezpieczającą i oryginalnym hologramem biura.
Pierwszy egzemplarz tomu I zawiera zgodę in blanco na wszystkie zmiany wprowadzane do projektu po zakupie przez lokalnego wybranego na własną rękę przez Inwestora architekta adaptującego/kierownika budowy. Do teczki projektów dołączamy także zaświadczenia i aktualne wpisy do Izb autorów projektu oraz wpisy aktualne na czas sporządzenia projektu.
Dodatki
Bezpłatne dodatki
GratisZestaw umów
GratisZmiany w projekcie
GratisTablica budowy
GratisDziennik budowy
Płatne dodatki

Kosztorys
470 zł

Dodatkowy egzemplarz projektu
450 zł

Projekt wentylacji mechanicznej z rekuperatorem
450 zł

Projekt fotowoltaiki dla domu
750 zł

Projekt instalacji z ogrzewaniem podłogowym
400 zł

Elektroniczna wersja projektu
600 zł










