Projekt domu Dom Dla Ciebie 9
Promocja ważna do
24-04-2026
- Typ projektuWolnostojący
- Powierzchnia użytkowa121.6 m²
- Kondygnacje
- GarażBez garażu
- DachDwuspadowy
- Kąt nach. dachu40°
- Odbicie lustrzaneTak
- Czas realizacjimax. czas realizacji 10 dni Zobacz więcej >
Opis
Zgodność z WT 2021 i Eurokodami
Ze względu na dostosowywanie projektu do standardu WT 2021, czas realizacji może się różnić od standardowego.
Skontaktuj się z nami aby poznać szczegóły dotyczące wybranego projektu.
Opis projektu
Dom Dla Ciebie 9 to projekt atrakcyjnego domu parterowego z poddaszem użytkowym dla 4-5cio osobowej rodziny. To powiększona wersja projektu Dom Dla ciebie 6, wydłużona o 90cm. Tak jak pozostałe projekty z serii, Dom Dla Ciebie 9 zaprojektowany został z zachowaniem podziału na dwie strefy użytkowe: ogólnie dostępną na parterze i prywatną na poddaszu. Parter obejmuje wiatrołap z wygodną szafą wnękową, hol, kuchnię ze spiżarnią, salon z jadalnią i kominkiem oraz pokój do wykorzystania jako gabinet, zlokalizowany od frontu domu. Przy schodach mamy zlokalizowaną kotłownię z pralnią i wygodną łazienkę. Na poddasze prowadzą jednobiegowe schody zabiegowe, gdzie mamy zaprojektowane trzy ustawne i dobrze doświetlone pokoje - każdy z wyjściem na balkon. Jest tu też ogólnie dostępna łazienka z pełnym wyposażeniem oraz niewielki strych z przeznaczeniem na garderobę. Poddasze domu wygospodarowane jest pod dwuspadowym dachem zaprojektowanym na tradycyjnej więźbie dachowej opartej na ściance kolankowej o wysokości około 1m. Projekt domu Dom Dla Ciebie 9, jest to idealna propozycją domu energooszczędnego, taniego w budowie i w użytkowaniu. Ogromną zaletą projektu jest prosta konstrukcja i dobrze zaprojektowana funkcja obejmująca niezbędne pomieszczenia pomocnicze takie jak garderoba, czy kotłownia z pralnią. To idealna propozycja na działki o szerokości ok 16m.
Konstrukcja
fundamenty: betonowe
ściany zewnętrzne: porotherm+styropian termo organika
rodzaj stropu: teriva i
elewacje: tynk strukturalny, okładzina klinkierowa, okładzina drewniana
pokrycie dachu: dachówka cementowa, ceramiczna lub blacha dachówko podobna
Rzuty
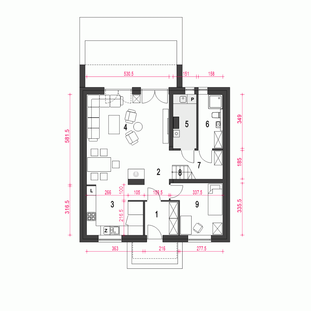
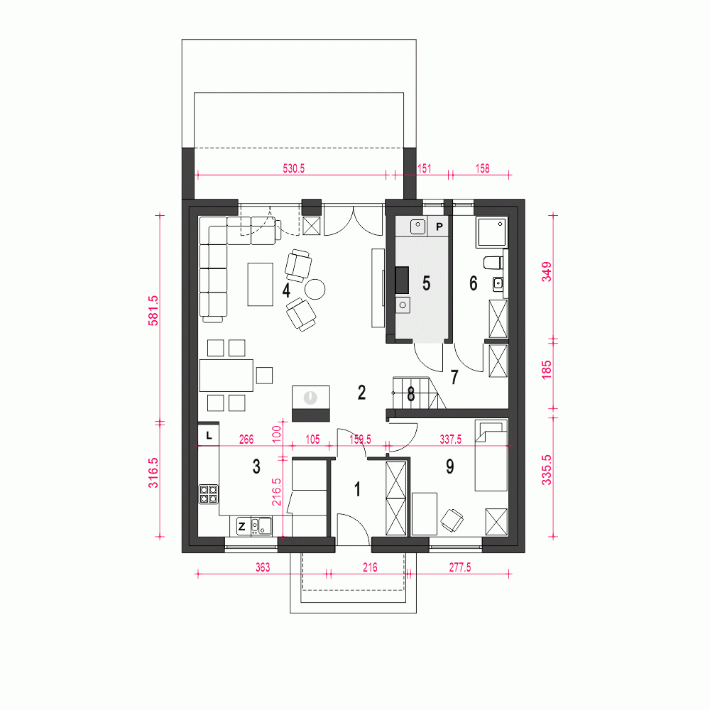
Parter
- m²
- 1. Wiatrołap4.6
- 2. Hol3.7
- 3. Kuchnia+Spiżarnia11.5
- 4. Salon+Jadalnia28.3
- 5. Kotłownia+pralnia*4.8
- 6. Łazienka5.4
- 7. Korytarz3.7
- 8. Schody4.3
- 9. Pokój9.8
Piętro
- m²
- 10. Przedpokój5.8
- 11. Sypialnia11.3
- 12. Sypialnia11.1
- 13. Strych (Garderoba)*3.9
- 14. Sypialnia16.6
- 15. Łazienka5.7
Przekrój
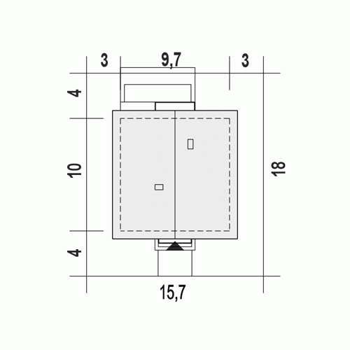
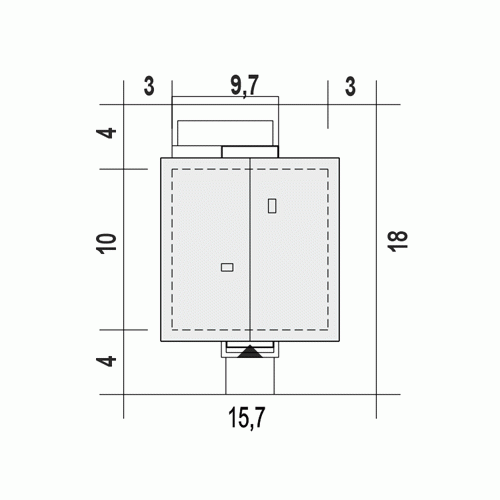
Usytuowanie na działce
Dane techniczne
- Powierzchnia użytkowa121.6 m²
- Powierzchnia zabudowy96.8 m²
- KominekTak
- Liczba łazienek2
- Liczba pokoi5
- Powierzchnia dachu164 m²
- Kubatura380 m³
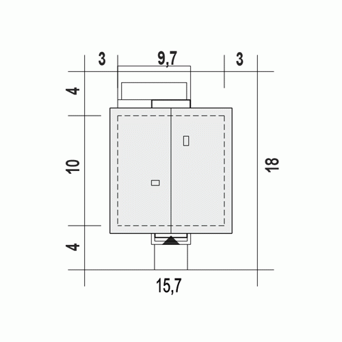
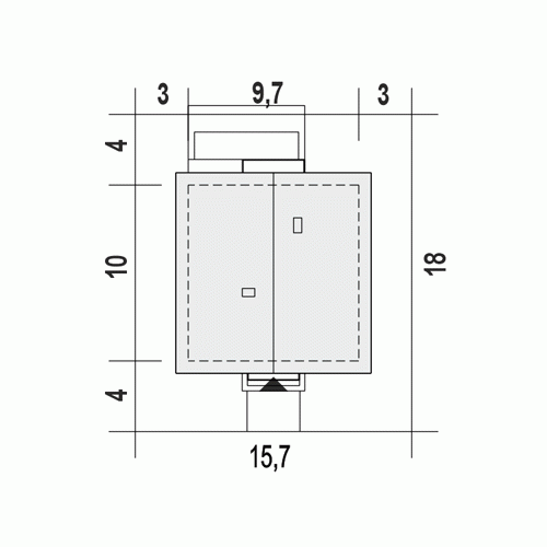
- Długość domu10 m
- Szerokość domu9.7 m
- Wysokość domu8.5 m
- Minimalne wymiary działki18 x 15.7m
- GarażBez garażu
- Rodzaj dachuDwuspadowy
- Kąt nach. dachu40°
Instalacja grzewcza
- Instalacja grzewczaGaz
Zawartość projektu
Zgodnie ze znowelizowaną Ustawą Prawo Budowlane art.34 ust.3, na projekt budowlany składają się trzy części:
- projekt zagospodarowania działki lub terenu
- projekt architektoniczno-budowlany
- projekt techniczny
Nasze projekty oferujemy w 3 egzemplarzach, zawierających projekt architektoniczno-budowlany i projekt techniczny. Projekt zagospodarowania działki lub terenu nie wchodzi w skład projektu oferowanego do sprzedaży. Projekt ten należy zlecić we własnym zakresie lokalnemu projektantowi, który opracuje go na podstawie danych zawartych w projekcie architektoniczno-budowlanym i technicznym, po dostosowaniu projektu do warunków lokalnych i wymagań inwestora.
UWAGA: wszystkie egzemplarze projektu zabezpieczone są hologramami, w części rysunkowej posiadają nadruki zabezpieczające w kolorze zielonym. Zalecamy aby po otrzymaniu przesyłki kontrolować czy na pierwszych stronach projektu znajduje się hologram i czy na rysunkach widoczne są w/w nadruki potwierdzające oryginalność projektu.
Wyrażamy zgodę na wszelkie zmiany zgodne z obowiązującymi przepisami pod warunkiem wprowadzenia ich przez uprawnioną osobę.
Wszystkie zmiany wymienione powyżej powinny być naniesione na oryginał projektu katalogowego trwałą techniką graficzną w kolorze czerwonym lub dołączone jako aneks i podpisane przez osobę uprawnioną dokonująca adaptacji.
**ważne informacje
Projekt w fazie koncepcji dostępny z wydłużonym terminem realizacji. Przy zamówieniu ustalamy termin i pobieramy zadatek 50% podstawowej ceny projektu (jako koszty usługi przygotowania dokumentacji do standardu projektu gotowego, w przypadku rezygnacji z usługi, zadatek nie podlega zwrotowi).
Cena za dodatkowy egzemplarz projektu jest zależna od nazwy projektu!
Dodatki
Bezpłatne dodatki
GratisZestaw umów
GratisZmiany w projekcie
GratisTablica budowy
GratisDziennik budowy
Płatne dodatki

Kosztorys - stan wykończony
540 zł

Projekt wentylacji mechanicznej
1 000 zł












