Projekt domu Dom przy Przyjemnej 19 bis
- Typ projektuWolnostojący
- StylNowoczesny
- Powierzchnia użytkowa80 m²
- KondygnacjeParterowy
- GarażDwustanowiskowy
- DachDwuspadowy
- Kąt nach. dachu30°
- Odbicie lustrzaneTak
- Czas realizacjimax. czas realizacji 10 dni Zobacz więcej >
Opis
Zgodność z WT 2021 i Eurokodami
Ze względu na dostosowywanie projektu do standardu WT 2021, czas realizacji może się różnić od standardowego.
Skontaktuj się z nami aby poznać szczegóły dotyczące wybranego projektu.
Opis projektu
Nowoczesny dom parterowy, wyposażony w system instalacji solarnej i wentylację mechaniczną z odzyskiem ciepła, projektowany w systemie tradycyjnym, murowanym. Płaski, dwuspadowy dach oparto na drewnianej więźbie krokwiowej. Minimalizm w ilości ścian nośnych sprawia, iż dom jest tani i szybki w budowie. Otwarta strefa dzienna składa się ze słonecznego pokoju z kominkiem i otwartej kuchni. W jadalni, ulokowanej na granicy kuchni i salonu z powodzeniem mieści się duży stół. Taras i przydomowy ogród dostępny jest w całej okazałości dzięki drzwiom przesuwnym. Część wypoczynkowa domu to dwie sypialnie i łazienka, z narożna wanną i kabiną prysznicową. Kotłownia została zaprojektowana tak, by pomieściła pralnię i była wielofunkcyjnym miejscem, w którym można magazynować środki czystości i sprzęty codziennego użytku. Solidny strop pozwala na zagospodarowanie dużego strychu według indywidualnego uznania. Atutem budynku jest dwustanowiskowy garaż z wyjściem do ogrodu. Dom przy Przyjemnej 19 to ciekawe rozwiązanie, które zainteresuje inwestorów chcących tanio i szybko wybudować elegancki, parterowy dom z dwustanowiskowym garażem. Doskonała propozycja dla 4-5 osobowej rodziny.Konstrukcja
Ściany zewnętrzne: pustak 25 cm, styropian 20 cm.Ściany nośne: pustak 25 cm.
Strop: monolityczny żelbetowy.
Dach: kąt nachylenia 30°, pokrycie - dachówka ceramiczna lub betonowa.
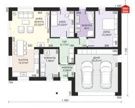
Rzuty
Parter
- 1 - wiatrołap3.08 m²
- 2 - hall9.17 m²
- 3 - kotłownia7.46 m²
- 4 - kuchnia12.31 m²
- 5 - pokój dzienny23.02 m²
- 6 - pokój10.02 m²
- 7 - łazienka8 m²
- 8 - pokój14.04 m²
- 9 - garaż30.91 m²
Przekrój
Sytuacja
Dane techniczne
- Powierzchnia użytkowa80 m²
- Powierzchnia zabudowy149.65 m²
- KominekTak
- Liczba łazienek1
- Liczba pokoi3
- Kubatura494.92 m³
- Wysokość domu6.96 m
- Minimalne wymiary działki22.5 x 19.35m
- GarażDwustanowiskowy
- Rodzaj dachuDwuspadowy
- Kąt nach. dachu30°
Instalacja grzewcza
- Instalacja grzewczainstalacja solarna, instalacja wentylacji mechanicznej
Zawartość projektu
Każdy egzemplarz dokumentacji składa się z z 6 egzemplarzy.Architekt wykonujący przystosowanie projektu gotowego tworzy projekt budowlany składający się z dwóch części - projektu architektoniczno-budowlanego (3 egzemplarze) oraz projektu technicznego (3 egzemplarze).
Projekt gotowy zawiera:
-projekt architektoniczny - zawierający opis oraz rysunki techniczne,
-projekt konstrukcyjny - składający się z opisu, obliczeń statycznych, rysunków oraz zestawień stali konstrukcyjnej i elementów więźby
-projekt wewnętrznych instalacji sanitarnych i grzewczych obejmujący instalacje: c.o., wodną, kanalizacyjną i gazową - zawierający opis, rysunki techniczne i zestawienia materiałów
-projekt wewnętrznej instalacji elektrycznej i odgromowej - składający się z opisu oraz rysunków technicznych.
We wszystkich egzemplarzach znajdą Państwo dołączony komplet uprawnień oraz niezbędne zaświadczenia projektantów o wpisach do izb zawodowych.
Zgoda na zmiany w pełnym zakresie dołączana jest automatycznie do projektu gotowego. Projektant dokonujący adaptacji projektu może wprowadzić następujące zmiany:
- wynikające z dostosowania budynku do warunków lokalnych
- zmiana technologii w zakresie użytych materiałów
- zmiana ilości, wielkości i usytuowania otworów okiennych i drzwiowych
- zmiana funkcji niektórych pomieszczeń
- zmiana wysokości pomieszczeń
- przesunięcie lub likwidacja niektórych ścian działowych
- zmiana obrysu zewnętrznego budynku
- adaptacja poddasza na cele mieszkalne
- zmiana wysokości ścian kolankowych
- zmiana geometrii połaci dachowych: kąta nachylenia, ilości i układu połaci dachowych (np. zmiana z wielospadowego, na dwuspadowy lub odwrotnie)
- zmiana lukarn na okna połaciowe (lub odwrotnie)
- zmiany szerokości biegów schodowych, liczby stopni i wymiarów schodów
- instalacji wewnętrznych
- zmiana ilości, wielkości i usytuowania trzonów kominowych
- zmiana wielkości i kształtu tarasów zewnętrznych
- wprowadzenie częściowego (całkowitego) podpiwniczenia budynku lub rezygnacja z podpiwniczenia
- dobudowanie garażu (wiaty garażowej) lub rezygnacja z garażu
- wykonanie lustrzanego odbicia
- likwidacja lub dodanie balkonu
- zmiana formy wejścia do budynku
- dobudowa do istniejącego budynku lub zestawienie w zabudowie bliźniaczej
- zmiana sposobu użytkowania budynku
- zmiany w układzie konstrukcji budynku na podstawie opracowania przez uprawnionego inżyniera budownictwa lądowego
Zmiany powyższe powinny być zaznaczone kolorem czerwonym w projekcie gotowym i podpisane przez osobę uprawnioną. W uzasadnionych przypadkach należy wykonać rysunki zamienne. Za zakres i poprawność przystosowania projektu gotowego (w tym wprowadzonych zmian) oraz za jego zgodność z obowiązującymi normami i przepisami budowlanymi w dniu składania projektu do zatwierdzenia, odpowiedzialność ponosi projektant przystosowujący projekt gotowy. Obowiązki z tytułu sprawowania nadzoru autorskiego przyjmuje na siebie projektant przystosowujący projekt gotowy.
Inne warianty tego projektu
Dodatki
Bezpłatne dodatki
GratisZestaw umów
GratisZmiany w projekcie
GratisTablica budowy
GratisDziennik budowy













