Projekt nowoczesnego domu do zabudowy szeregowej EG-88 EXD SKRAJNY to projekt kompaktowego domu do 100 m² dla 4. osobowej rodziny.
Mimo niedużych rozmiarów dom został podzielony na strefy: na parterze mieszczą się strefy dzienna i techniczna, a na piętrze – nocna.
Część dzienna to otwarta przestrzeń złożona z salonu, jadalni oraz kuchni. Przestrzeń została dobrze rozplanowana, aby pomieścić wygodny narożnik, duży stół i zabudowę kuchenną ze sprzętami AGD. Kuchnia częściowo jest oddzielona od jadalni za pomocą dolnej zabudowy. Jadalnia ma wyjście do ogrodu i jest przeszklona z dwóch stron. Na parterze jeszcze jest toaleta oraz klatka schodowa prowadząca na górę, które mieszczą się za wiatrołapem. A w samym wiatrołapie jest miejsce na dwie szafy, dostęp do schowka pod schodami oraz przejście do garażu.
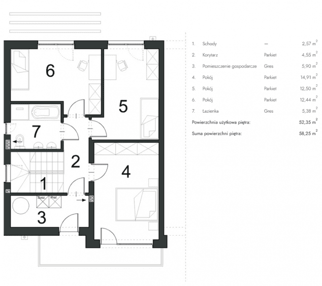
Na piętrze zaprojektowano 3 wygodne sypialnie, wspólną łazienkę z wanną i dwiema umywalkami oraz pomieszczenie gospodarcze/pralnię. Dodatkowo sypialnia gospodarzy i pralnia posiadają wyjście na balkon, który znajduje się od frontu i tworzy zadaszenie nad wejściem do domu.
Duże okna zapewniają doświetlenie wszystkich pomieszczeń i jednocześnie nadają budynkowi nowoczesnego wyglądu. Elewacja budynku to połączenie bieli i szarości ocieplone okładziną z desek.



















