- Typ projektuWolnostojący
- Powierzchnia użytkowa119.4 m²
- Kondygnacje
- GarażJednostanowiskowy
- DachDwuspadowy
- Kąt nach. dachu30°
- Odbicie lustrzaneTak
- Czas realizacjimax. czas realizacji 10 dni Zobacz więcej >
Opis
Zgodność z WT 2021 i Eurokodami
Ze względu na dostosowywanie projektu do standardu WT 2021, czas realizacji może się różnić od standardowego.
Skontaktuj się z nami aby poznać szczegóły dotyczące wybranego projektu.
Opis projektu
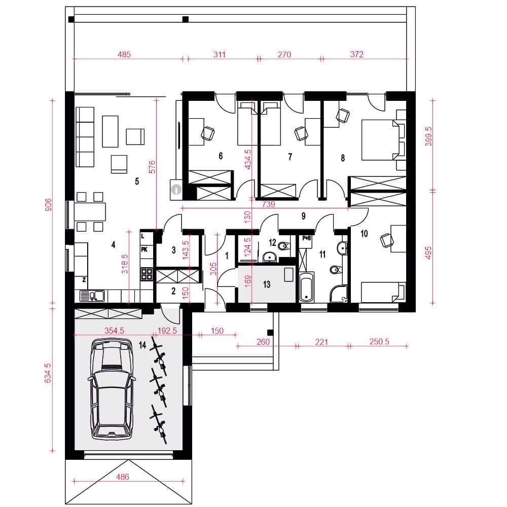
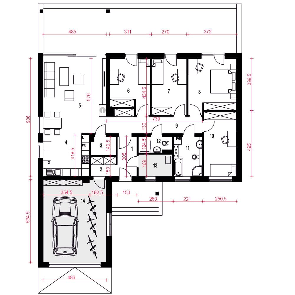
Projekt domu Gąska IV z garażem to praktyczna i estetyczna propozycja dla 4–5-osobowej rodziny, która szuka wygodnego i ekonomicznego miejsca do życia. Budynek zaprojektowano z myślą o optymalnym wykorzystaniu przestrzeni przy jednoczesnym zachowaniu nowoczesnego wyglądu.W domu zaplanowano cztery sypialnie, które zapewniają prywatność wszystkim domownikom, a przestronny salon z dużymi oknami łączy się z kuchnią i jadalnią, tworząc otwartą i funkcjonalną strefę dzienną. Obok kuchni znajduje się spiżarnia, a w części wejściowej – wiatrołap z garderobą. Dwie łazienki zwiększają wygodę codziennego użytkowania, a kotłownia dostępna z wiatrołapu została oddzielona od części mieszkalnej.Pomieszczenia rozplanowano wzdłuż praktycznego korytarza, co ułatwia komunikację. Garaż od frontu oraz zadaszenia z przodu i od strony ogrodu dodają funkcjonalności. Elewacja z drewna i kamienia nadaje domowi nowoczesny, a zarazem ciepły wygląd.Gąska III to projekt, który łączy komfort, funkcjonalność i estetykę z rozsądnymi kosztami budowy i użytkowania – idealny do miasta i na przedmieścia.
Konstrukcja
fundamenty: betonowe
ściany zewnętrzne: porotherm+ocieplenie
ściany wewnętrzne: porotherm
rodzaj stropu: teriva i
elewacje: tynk strukturalny, okładzina kamienna, drewniana
pokrycie dachu: dachówka
Rzuty
Parter
Dane techniczne
- Powierzchnia użytkowa119.4 m²
- Powierzchnia zabudowy192.5 m²
- KominekTak
- Liczba łazienek2
- Liczba pokoi5
- Powierzchnia dachu302 m²
- Długość domu16.6 m
- Szerokość domu15.8 m
- Wysokość domu7.1 m
- Minimalne wymiary działki26.1 x 22.8m
- GarażJednostanowiskowy
- Rodzaj dachuDwuspadowy
- Kąt nach. dachu30°
Instalacja grzewcza
- Instalacja grzewczaGaz
Zawartość projektu
Zgodnie ze znowelizowaną Ustawą Prawo Budowlane art.34 ust.3, na projekt budowlany składają się trzy części:
- projekt zagospodarowania działki lub terenu
- projekt architektoniczno-budowlany
- projekt techniczny
Nasze projekty oferujemy w 3 egzemplarzach, zawierających projekt architektoniczno-budowlany i projekt techniczny. Projekt zagospodarowania działki lub terenu nie wchodzi w skład projektu oferowanego do sprzedaży. Projekt ten należy zlecić we własnym zakresie lokalnemu projektantowi, który opracuje go na podstawie danych zawartych w projekcie architektoniczno-budowlanym i technicznym, po dostosowaniu projektu do warunków lokalnych i wymagań inwestora.
UWAGA: wszystkie egzemplarze projektu zabezpieczone są hologramami, w części rysunkowej posiadają nadruki zabezpieczające w kolorze zielonym. Zalecamy aby po otrzymaniu przesyłki kontrolować czy na pierwszych stronach projektu znajduje się hologram i czy na rysunkach widoczne są w/w nadruki potwierdzające oryginalność projektu.
Wyrażamy zgodę na wszelkie zmiany zgodne z obowiązującymi przepisami pod warunkiem wprowadzenia ich przez uprawnioną osobę.
Wszystkie zmiany wymienione powyżej powinny być naniesione na oryginał projektu katalogowego trwałą techniką graficzną w kolorze czerwonym lub dołączone jako aneks i podpisane przez osobę uprawnioną dokonująca adaptacji.
**ważne informacje
Projekt w fazie koncepcji dostępny z wydłużonym terminem realizacji. Przy zamówieniu ustalamy termin i pobieramy zadatek 50% podstawowej ceny projektu (jako koszty usługi przygotowania dokumentacji do standardu projektu gotowego, w przypadku rezygnacji z usługi, zadatek nie podlega zwrotowi).
Cena za dodatkowy egzemplarz projektu jest zależna od nazwy projektu!
Dodatki
Bezpłatne dodatki
GratisZestaw umów
GratisZmiany w projekcie
GratisTablica budowy
GratisDziennik budowy
Płatne dodatki

Kosztorys - stan wykończony
540 zł

Projekt wentylacji mechanicznej
1 000 zł









