X

Korzystając z portalu wbudowie.pl bez zmiany ustawień przeglądarki, zgadzasz się na użycie plików cookies i podobnych technologii w celach: świadczenia usług, analiz, statystyk, reklamy. Przeglądając serwis bez zmiany ustawień wyrażasz zgodę na użycie plików cookies. Więcej w Polityce Prywatności i Cookies. Pamiętaj, że zawsze możesz zmienić te ustawienia.

wbudowie.pl

HARMONIJNY D56 WARIANT I

4 899 zł

Projekt domu HARMONIJNY D56 WARIANT I

Autor projektu:EG-domy
Gratis do projektów: zestaw umów, zgoda na zmiany w projekcie. Darmowa dostawa za 0 zł.
5 399 zł4 899 zł
Oszczędź: 500,00zł
Najniższa cena z 30 dni: 4 899,00 zł

Promocja ważna do

23-02-2026

Zadaj pytanie
  • Typ projektuWolnostojący
  • StylNowoczesny
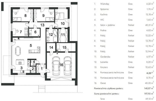
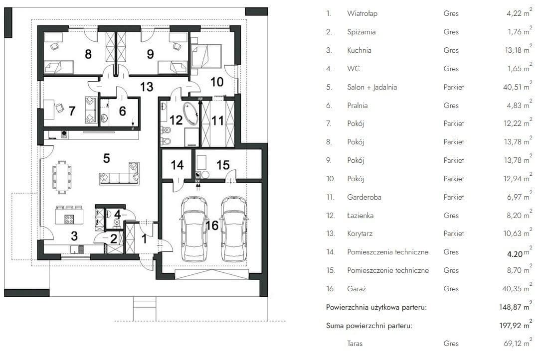
  • Powierzchnia użytkowa148.87 m²
  • KondygnacjeParterowy
  • GarażDwustanowiskowy
  • DachPłaski
  • Odbicie lustrzaneTak
  • Czas realizacji7 dni
  • Zobacz więcej >

Zadzwoń do konsultanta

Godziny pracy: Pon. - Pt.8:00 - 16:00

Opis

Zgodność z WT 2021 i Eurokodami

Ze względu na dostosowywanie projektu do standardu WT 2021, czas realizacji może się różnić od standardowego.

Skontaktuj się z nami aby poznać szczegóły dotyczące wybranego projektu.

Opis projektu

HARMONIJNY D56 WARIANT I to parterowy, nowoczesny dom z płaskim dachem i charakterystyczną ramą okalającą dom.

Reprezentacyjnym pomieszczeniem tego domu jest przestronny, dobrze doświetlony salon, w którym zaprojektowano miejsce na duży stół, komplet wypoczynkowy oraz kominek. Przylegająca do salonu kuchnia posiada wyspę, spiżarnię, oddzielne wyjście na taras oraz widok na wejście. Niewątpliwym atutem tego domu jest możliwość adaptacji poddasza na cele użytkowe, w tym celu wyodrębniono klatkę schodową. Strefa dzienna posiada swoją toaletę umieszczoną obok wiatrołapu.

W strefie nocnej zaprojektowano 4 pokoje/sypialnie, sporą łazienkę oraz pralnię. Ponadto sypialnia gospodarzy została wyposażona w garderobę, a z trzech pokoi jest wyjście na taras.

W części technicznej zaprojektowano obszerny dwustanowiskowy garaż z wejściem z wiatrołapu oraz dwa pomieszczenia techniczne.

Elewacja budynku to szarość z elementami drewna ocieplającymi odbiór wizualny domu oraz biała rama otaczająca dom, która jednocześnie jest zadaszeniem zewnętrznym tarasu.


Konstrukcja

Technologia:
Fundamenty - ławy fundamentowe żelbetowe monolityczne
Ściany fundamentowe - bloczki betonowe
Ściany konstrukcyjne - pustaki gazobetonowe o grubości 24 cm
Ściany działowe - pustaki gazobetonowe o grubości 12 cm
Stropy - żelbetowe monolityczne
Dach - płaski

Rzuty

Rzut parteru

Rzut projektu HARMONIJNY D56 WARIANT I - Rzut parteru

Usytuowanie na działce

Rzut projektu HARMONIJNY D56 WARIANT I - Usytuowanie na działce

Dane techniczne

  • Powierzchnia użytkowa148.87 m²
  • Powierzchnia netto197.92 m²
  • Powierzchnia zabudowy239.68 m²
  • Liczba łazienek1
  • Liczba pokoi4
  • Kubatura521.93 m³
  • Długość domu19.31 m
  • Szerokość domu17.56 m
  • Wysokość domu4.06 m
  • PoddaszeNie
  • Minimalne wymiary działki26.15 x 23.56m
  • GarażDwustanowiskowy
  • Rodzaj dachuPłaski

Instalacja grzewcza

  • Instalacja opcjonalna

Zawartość projektu

Gotowy projekt domu, który Ci dostarczamy, składa się z kilku działów, są to:

Projekt architektoniczno-budowlany (3 egzemplarze) w wersji papierowej

  • Opis architektoniczny z elementami konstrukcji.
  • Część rysunkowa (rzuty parteru, poddasza, piętra i dachu, przekroje i elewacje budynku).

Projekt techniczny (3 egzemplarze) w wersji papierowej

  • Opisy branżowe (konstrukcja, branża sanitarna i elektryczna).
  • Część rysunkowa – konstrukcja (rzuty fundamentów, stropu, więźby, dachu oraz przekroje, szczegóły konstrukcji i ewentualne szczegóły budowlane).
  • Część rysunkowa do projektów instalacji (schematy: instalacji elektrycznych, instalacji wodno-kanalizacyjnej i ciepłej wody, instalacji grzewczych, ew. instalacji gazowej).

Materiały dodatkowe dodawane do projektu w wersji papierowej

  • Bezpłatna zgoda na zmiany, która jest potrzebna dla architekta adaptującego aby mógł dokonać modyfikacji w projekcie.
  • Charakterystyka energetyczna (dla projektów domów).
  • Kopie uprawnień architektów i branżystów.

Płatne Dodatki do projektów sprzedawane w formie elektronicznej na płycie (z wyjątkiem dodatkowego egzemplarza projektu) i bez prawa zwrotu.

Wykaz dokumentów zawartych w projekcie sauny

Projekt techniczny

  • Opisy techniczny wszystkich części składowych sauny
  • Część rysunkowa – konstrukcja (rzut sauny, rzut fundamentów, rzut podłogi, rzut dachu, przekroje, elewacje zewnętrzne, elewacja pomieszczenia sauny, szkielety – elewacji południowej, wschodniej, północnej, zachodniej, detale konstrukcyjne, zestawienie stolarki okienno-drzwiowej, zestawienie materiałów)
  • Część rysunkowa do projektów instalacji (schematy: instalacji elektrycznej i wodno-kanalizacyjnej)

Projekty saun sprzedawane w formie elektronicznej (w formacie PDF) na płycie (z wyjątkiem dodatkowego egzemplarza projektu) i bez prawa zwrotu.

Płatne Dodatki do projektów sauny sprzedawane są w formie elektronicznej na płycie czyli kosztorys inwestorski (z wyjątkiem dodatkowego egzemplarza projektu) i bez prawa zwrotu.

 

Standardowy zakres zmian

Aby dopasować projekt do swoich potrzeb, otrzymasz bezpłatne pozwolenie na zmiany. Standardowo obejmuje ono m.in. przesunięcie drzwi, okien, zmianę funkcji pomieszczeń czy rodzaju ogrzewania. Jeśli taka zgoda to za mało, skontaktuj się z nami.

Dodatki

Bezpłatne dodatki

Gratis

Zestaw umów

Gratis

Zmiany w projekcie

Gratis

Tablica budowy

Gratis

Dziennik budowy

Płatne dodatki

Pakiet ogrzewanie podłogowe

620 zł

Pakiet powietrznej / gruntowej pompy ciepła

590 zł

Projekt wentylacji mechanicznej

860 zł

Dodatkowy egzemplarz

590 zł

Wersja elektroniczna projektu

590 zł

Kosztorys

620 zł

Zapisz sie na newsletter i otrzymuj informacje o nowościach i promocjach.