- Typ projektuWolnostojący
- Powierzchnia użytkowa118.4 m²
- Kondygnacje
- GarażJednostanowiskowy
- DachDwuspadowy
- Kąt nach. dachu30°
- Odbicie lustrzaneTak
- Czas realizacjimax. czas realizacji 10 dni Zobacz więcej >
Opis
Zgodność z WT 2021 i Eurokodami
Ze względu na dostosowywanie projektu do standardu WT 2021, czas realizacji może się różnić od standardowego.
Skontaktuj się z nami aby poznać szczegóły dotyczące wybranego projektu.
Opis projektu
Hyzop II z garażem jednostanowiskowym, to projekt nowoczesnego domu parterowego, typu stodoła, przeznaczonego dla 4 do 5cio osobowej rodziny. Zaprojektowany jest w technologii murowanej z prefabrykowaną więźbą dachową, przekryty dwuspadowym dachem. Hyzop II to funkcjonalny projekt domu parterowego, łączący strefę ogólnodostępną i prywatną na jednym poziomie. W części wejściowej mamy przewidziany wygodny wiatrołap z szafami wnękowymi i pralnię z c.o. W części ogólnodostępnej mamy przewidziany przestronny i dobrze doświetlony salon z miejscem na wygodny stół jadalniany z widokiem na ogród. Dzięki dużym drzwiom tarasowym od strony ogrodowej, dostaniemy się wprost na zewnętrzny zadaszony taras - zadaszenie tarasu przewidziane jest na całe długości domu. W części ogólnodostępnej projekt przewiduje również wygodną kuchnię ze spiżarnią z której mamy dostęp do garażu.. W części prywatnej mamy do dyspozycji trzy pokoje sypialne i wspólną łazienkę z wanną i prysznicem. Hyzop II to atrakcyjna propozycja projektu domu energooszczędnego, o nowoczesnym wyglądzie. To projekt domu z serii "eco" - ekonomiczny w budowie i w utrzymaniu - idealna propozycja dla rodzin planujących budowę pierwszego domu.
Konstrukcja
fundamenty: betonowe
ściany zewnętrzne: porotherm+styropian termo organika
rodzaj stropu i konstrukcja dachu: wiązary prefabrykowane mitek
elewacje: okładzina klinkierowa, tynk strukturalny
pokrycie dachu: blacha
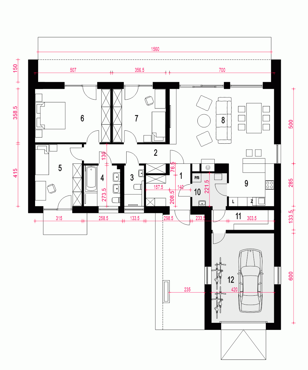
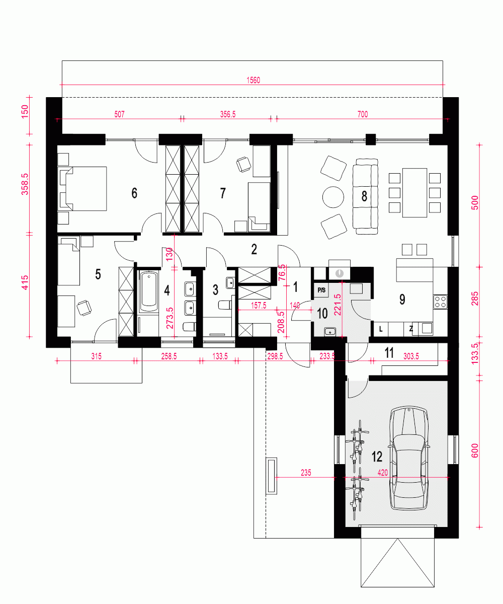
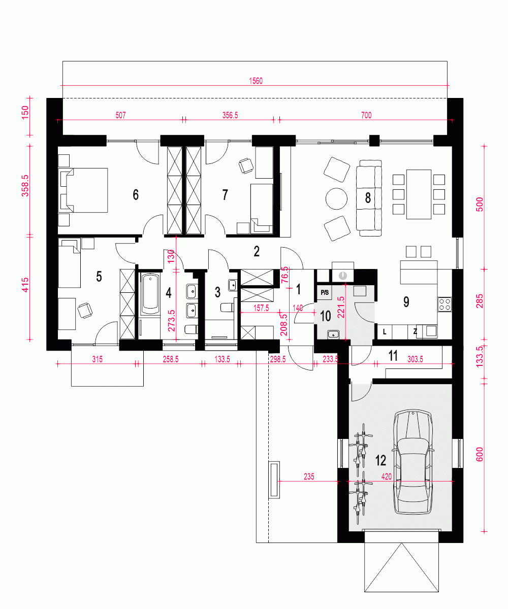
Rzuty
Parter
- m²
- 1. Wiatrołap7
- 2. Komunikacja8.1
- 3. Łazienka3.5
- 4. Łazienka6.8
- 5. Sypialnia12.9
- 6. Sypialnia17.9
- 7. Sypialnia12.6
- 8. Salon + jadalnia34.3
- 9. Kuchnia9.9
- 10. Pralnia z C.O.*4.7
- 11. Spiżarnia5.4
- 12. Garaż*24.9
Przekrój
Usytuowanie na działce
Dane techniczne
- Powierzchnia użytkowa118.4 m²
- KominekTak
- Liczba łazienek2
- Liczba pokoi4
- Powierzchnia dachu201 m²
- Długość domu18.1 m
- Szerokość domu17 m
- Wysokość domu6.4 m
- Minimalne wymiary działki26.1 x 24m
- GarażJednostanowiskowy
- Rodzaj dachuDwuspadowy
- Kąt nach. dachu30°
Instalacja grzewcza
- Instalacja grzewczaGaz
Zawartość projektu
Zgodnie ze znowelizowaną Ustawą Prawo Budowlane art.34 ust.3, na projekt budowlany składają się trzy części:
- projekt zagospodarowania działki lub terenu
- projekt architektoniczno-budowlany
- projekt techniczny
Nasze projekty oferujemy w 3 egzemplarzach, zawierających projekt architektoniczno-budowlany i projekt techniczny. Projekt zagospodarowania działki lub terenu nie wchodzi w skład projektu oferowanego do sprzedaży. Projekt ten należy zlecić we własnym zakresie lokalnemu projektantowi, który opracuje go na podstawie danych zawartych w projekcie architektoniczno-budowlanym i technicznym, po dostosowaniu projektu do warunków lokalnych i wymagań inwestora.
UWAGA: wszystkie egzemplarze projektu zabezpieczone są hologramami, w części rysunkowej posiadają nadruki zabezpieczające w kolorze zielonym. Zalecamy aby po otrzymaniu przesyłki kontrolować czy na pierwszych stronach projektu znajduje się hologram i czy na rysunkach widoczne są w/w nadruki potwierdzające oryginalność projektu.
Wyrażamy zgodę na wszelkie zmiany zgodne z obowiązującymi przepisami pod warunkiem wprowadzenia ich przez uprawnioną osobę.
Wszystkie zmiany wymienione powyżej powinny być naniesione na oryginał projektu katalogowego trwałą techniką graficzną w kolorze czerwonym lub dołączone jako aneks i podpisane przez osobę uprawnioną dokonująca adaptacji.
**ważne informacje
Projekt w fazie koncepcji dostępny z wydłużonym terminem realizacji. Przy zamówieniu ustalamy termin i pobieramy zadatek 50% podstawowej ceny projektu (jako koszty usługi przygotowania dokumentacji do standardu projektu gotowego, w przypadku rezygnacji z usługi, zadatek nie podlega zwrotowi).
Cena za dodatkowy egzemplarz projektu jest zależna od nazwy projektu!
Polecane projekty
Dodatki
Bezpłatne dodatki
GratisZestaw umów
GratisZmiany w projekcie
GratisTablica budowy
GratisDziennik budowy
Płatne dodatki

Kosztorys - stan wykończony
540 zł

Projekt wentylacji mechanicznej
1 000 zł









