Projekt domu Igor z garażem
Promocja ważna do
24-04-2026
- Typ projektuWolnostojący
- Powierzchnia użytkowa108.8 m²
- Kondygnacje
- GarażJednostanowiskowy
- DachDwuspadowy
- Kąt nach. dachu45°
- Odbicie lustrzaneTak
- Czas realizacjimax. czas realizacji 10 dni Zobacz więcej >
Opis
Zgodność z WT 2021 i Eurokodami
Ze względu na dostosowywanie projektu do standardu WT 2021, czas realizacji może się różnić od standardowego.
Skontaktuj się z nami aby poznać szczegóły dotyczące wybranego projektu.
Opis projektu
Igor to projekt będący zoptymalizowaną propozycją przeznaczoną dla rodzin 4-osobowych. Budynek zaprojektowano tak aby był ekonomiczny w budowie i eksploatacji. Igor to prosta, zwarta bryła, dwuspadowy dach, oszczędny detal architektoniczny. Poprzez zastosowanie jętkowej konstrukcji więźby dachowej przestrzeń poddasza może zostać efektywnie wykorzystana i nie jest ograniczona słupami konstrukcyjnymi. Do budynku wchodzi się przez wiatrołap, następnie poprzez hol możemy dostać się do salonu z kuchnią i spiżarnią oraz na poddasze. Z wiatrołapu możemy dostać się także do garażu a dalej do kotłowni. Poddasze Igora to trzy wygodne sypialnie, największa z nich typu master bedroom posiada własną łazienkę oraz garderobę. Z holu mamy dostęp także do wspólnej łazienki z niedużą pralnią oraz garderoby. Elewacje Igora cechuje prostota i elegancja.
Konstrukcja
fundamenty: betonowe
ściany zewnętrzne: porotherm+styropian termo organika
rodzaj stropu: żelbetowy
elewacje: tynk strukturalny
pokrycie dachu: dachówka cem. lub cer.
Rzuty
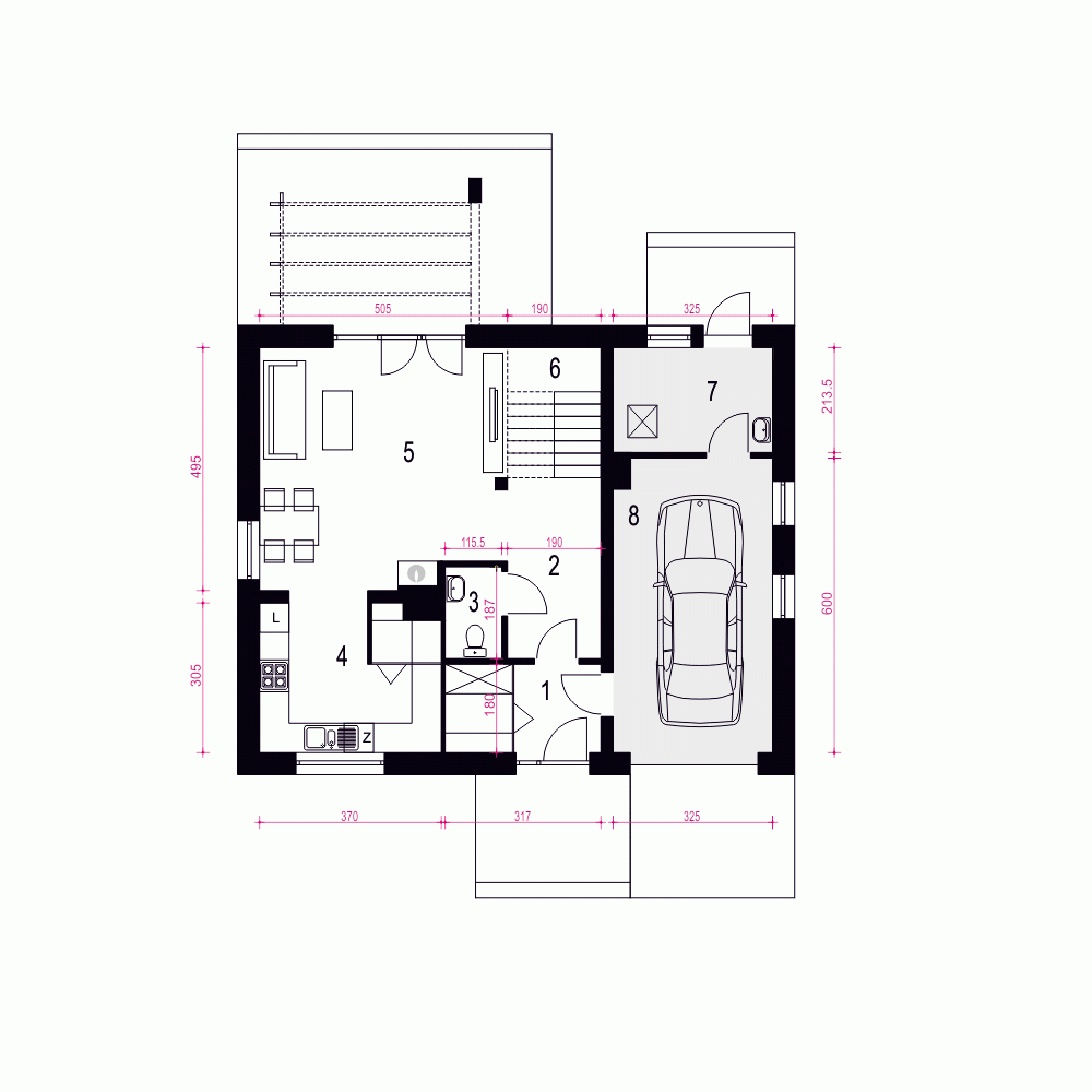
Parter
- m²
- 1. Wiatrołap5.4
- 2. Hol7.5
- 3. WC2.1
- 4. Kuchnia, Spiżarnia11.3
- 5. Salon24.4
- 6. Schody4.7
- 7. Pom. techniczne z CO*6.8
- 8. Garaż*19
Piętro
- m²
- 9. Hol7.3
- 10. Pokój10.2
- 11. Pokój10.6
- 12. Strych*3.3
- 13. Łazienka6.3
- 14. Pralnia*2.2
- 15. Łazienka3.5
- 16. Pokój15.8
Przekrój
Usytuowanie na działce
Dane techniczne
- Powierzchnia użytkowa108.8 m²
- Powierzchnia zabudowy104.5 m²
- KominekTak
- Liczba łazienek2
- Liczba pokoi4
- Powierzchnia dachu177.5 m²
- Długość domu9.2 m
- Szerokość domu11.4 m
- Wysokość domu9 m
- Minimalne wymiary działki17.2 x 19.4m
- GarażJednostanowiskowy
- Rodzaj dachuDwuspadowy
- Kąt nach. dachu45°
Instalacja grzewcza
- Instalacja grzewczaGaz, Paliwo stałe
Zawartość projektu
Zgodnie ze znowelizowaną Ustawą Prawo Budowlane art.34 ust.3, na projekt budowlany składają się trzy części:
- projekt zagospodarowania działki lub terenu
- projekt architektoniczno-budowlany
- projekt techniczny
Nasze projekty oferujemy w 3 egzemplarzach, zawierających projekt architektoniczno-budowlany i projekt techniczny. Projekt zagospodarowania działki lub terenu nie wchodzi w skład projektu oferowanego do sprzedaży. Projekt ten należy zlecić we własnym zakresie lokalnemu projektantowi, który opracuje go na podstawie danych zawartych w projekcie architektoniczno-budowlanym i technicznym, po dostosowaniu projektu do warunków lokalnych i wymagań inwestora.
UWAGA: wszystkie egzemplarze projektu zabezpieczone są hologramami, w części rysunkowej posiadają nadruki zabezpieczające w kolorze zielonym. Zalecamy aby po otrzymaniu przesyłki kontrolować czy na pierwszych stronach projektu znajduje się hologram i czy na rysunkach widoczne są w/w nadruki potwierdzające oryginalność projektu.
Wyrażamy zgodę na wszelkie zmiany zgodne z obowiązującymi przepisami pod warunkiem wprowadzenia ich przez uprawnioną osobę.
Wszystkie zmiany wymienione powyżej powinny być naniesione na oryginał projektu katalogowego trwałą techniką graficzną w kolorze czerwonym lub dołączone jako aneks i podpisane przez osobę uprawnioną dokonująca adaptacji.
**ważne informacje
Projekt w fazie koncepcji dostępny z wydłużonym terminem realizacji. Przy zamówieniu ustalamy termin i pobieramy zadatek 50% podstawowej ceny projektu (jako koszty usługi przygotowania dokumentacji do standardu projektu gotowego, w przypadku rezygnacji z usługi, zadatek nie podlega zwrotowi).
Cena za dodatkowy egzemplarz projektu jest zależna od nazwy projektu!
Dodatki
Bezpłatne dodatki
GratisZestaw umów
GratisZmiany w projekcie
GratisTablica budowy
GratisDziennik budowy
Płatne dodatki

Kosztorys - stan wykończony
540 zł

Projekt wentylacji mechanicznej
1 000 zł












