Projekt domu Julek II z garażem
- Typ projektuWolnostojący
- Powierzchnia użytkowa101 m²
- Kondygnacje
- GarażJednostanowiskowy
- DachDwuspadowy
- Kąt nach. dachu35°
- Odbicie lustrzaneTak
- Czas realizacjimax. czas realizacji 10 dni Zobacz więcej >
Opis
Zgodność z WT 2021 i Eurokodami
Ze względu na dostosowywanie projektu do standardu WT 2021, czas realizacji może się różnić od standardowego.
Skontaktuj się z nami aby poznać szczegóły dotyczące wybranego projektu.
Opis projektu
Julek II to wersja popularnego projektu Julek, w której dodano poddasze do adaptacji. Dom ma prostą bryłę, przykrytą dwuspadowym dachem, co wpływa na niski koszt jego budowy. Strefa wejściowa i tarasowa posiada zadaszenie, które zapewniają osłonę od deszczu i słońca. Kamienna okładzina na elewacji dodaje domowi tradycyjnego charakteru. Sercem domu jest otwarty salon z miejscem na wspólne posiłki oraz schodami prowadzącymi do przestrzeni strychowej do adaptacji. Znajdujący się tam kominek wprowadza do wnętrza atmosferę ogniska domowego. Salon otwiera się na półotwartą kuchnię ze schowkiem. Wokół holu rozplanowano trzy sypialnie, toaletę, łazienkę oraz spiżarnię, która posiada przejście do garażu i dużej kotłowni. Wielkość kotłowni umożliwia instalację pieca na paliwo stałe.
Konstrukcja
fundamenty: betonowe
ściany zewnętrzne: porotherm+styropian termo organika
ściany wewnętrzne: porotherm, gk
rodzaj stropu: teriva i
elewacje: tynk strukturalny
pokrycie dachu: dachówka ceramiczna
Rzuty
Parter
- m²
- 1. Wiatrołap3.5
- 2. Hol8.9
- 3. WC1.4
- 4. Łazienka7.1
- 5. Sypialnia9.8
- 6. Schowek2.2
- 7. Sypialnia12.7
- 8. Sypialnia10.1
- 9. Salon31.4
- 10. Schody3.8
- 11. Kuchnia8.3
- 12. Spiżarnia1.9
- 13. Kotłownia*6.6
- 14. Garaż*18
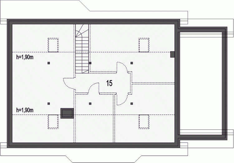
Piętro
Przekrój
Usytuowanie na działce
Dane techniczne
- Powierzchnia użytkowa101 m²
- Powierzchnia zabudowy159.1 m²
- KominekTak
- Liczba łazienek1
- Liczba pokoi4
- Powierzchnia dachu251.5 m²
- Kubatura564 m³
- Długość domu9.9 m
- Szerokość domu16.8 m
- Wysokość domu7.7 m
- Minimalne wymiary działki17.9 x 24.8m
- GarażJednostanowiskowy
- Rodzaj dachuDwuspadowy
- Kąt nach. dachu35°
Instalacja grzewcza
- Instalacja grzewczaGaz
Zawartość projektu
Zgodnie ze znowelizowaną Ustawą Prawo Budowlane art.34 ust.3, na projekt budowlany składają się trzy części:
- projekt zagospodarowania działki lub terenu
- projekt architektoniczno-budowlany
- projekt techniczny
Nasze projekty oferujemy w 3 egzemplarzach, zawierających projekt architektoniczno-budowlany i projekt techniczny. Projekt zagospodarowania działki lub terenu nie wchodzi w skład projektu oferowanego do sprzedaży. Projekt ten należy zlecić we własnym zakresie lokalnemu projektantowi, który opracuje go na podstawie danych zawartych w projekcie architektoniczno-budowlanym i technicznym, po dostosowaniu projektu do warunków lokalnych i wymagań inwestora.
UWAGA: wszystkie egzemplarze projektu zabezpieczone są hologramami, w części rysunkowej posiadają nadruki zabezpieczające w kolorze zielonym. Zalecamy aby po otrzymaniu przesyłki kontrolować czy na pierwszych stronach projektu znajduje się hologram i czy na rysunkach widoczne są w/w nadruki potwierdzające oryginalność projektu.
Wyrażamy zgodę na wszelkie zmiany zgodne z obowiązującymi przepisami pod warunkiem wprowadzenia ich przez uprawnioną osobę.
Wszystkie zmiany wymienione powyżej powinny być naniesione na oryginał projektu katalogowego trwałą techniką graficzną w kolorze czerwonym lub dołączone jako aneks i podpisane przez osobę uprawnioną dokonująca adaptacji.
**ważne informacje
Projekt w fazie koncepcji dostępny z wydłużonym terminem realizacji. Przy zamówieniu ustalamy termin i pobieramy zadatek 50% podstawowej ceny projektu (jako koszty usługi przygotowania dokumentacji do standardu projektu gotowego, w przypadku rezygnacji z usługi, zadatek nie podlega zwrotowi).
Cena za dodatkowy egzemplarz projektu jest zależna od nazwy projektu!
Dodatki
Bezpłatne dodatki
GratisZestaw umów
GratisZmiany w projekcie
GratisTablica budowy
GratisDziennik budowy
Płatne dodatki

Kosztorys - stan wykończony
540 zł

Projekt wentylacji mechanicznej
1 000 zł










