- Typ projektuWolnostojący
- Powierzchnia użytkowa114.7 m²
- Kondygnacje
- GarażJednostanowiskowy
- DachWielospadowy
- Kąt nach. dachu25°
- Odbicie lustrzaneTak
- Czas realizacjimax. czas realizacji 10 dni Zobacz więcej >
Opis
Zgodność z WT 2021 i Eurokodami
Ze względu na dostosowywanie projektu do standardu WT 2021, czas realizacji może się różnić od standardowego.
Skontaktuj się z nami aby poznać szczegóły dotyczące wybranego projektu.
Opis projektu
Projekt domu parterowego Klara IV z garażem to idealna propozycja dla 4 do 5cio osobowej rodziny. Dom zaprojektowany jest w technologii murowanej z tradycyjną więźbą dachową, przekryty spadzistym dachem kopertowym. Klara IV to funkcjonalny projekt domu parterowego, łączący strefę ogólnodostępną i prywatną na jednej kondygnacji. Projekt jest opracowany w oparciu o projekt Klara III, względem którego różni się zadaszeniem strefy wejściowej dachem opartym na filarach przekrywającym garaż. W części wejściowej mamy zaprojektowany wygodny wiatrołap i hol z szafami wnękowymi, pralnię oraz toaletę. W części ogólnodostępnej przewidziano przestronny i dobrze doświetlony salon z miejscem na wygodny stół jadalniany, z widokiem na ogród. Dzięki dużym drzwiom tarasowym od strony ogrodowej, dostaniemy się wprost na taras zewnętrzny, zadaszony podcieniem. W strefie ogólnodostępnej projekt przewiduje również wygodną kuchnię z wyspą i praktyczną spiżarnią. Kuchnia z układem mebli w kształcie litery "L", zapewnia wygodną przestrzeń do pracy, a duże frontowe okno doświetla idealnie przestrzeń roboczą. Do części prywatnej domu dostaniemy się przez korytarz dostępny z holu wejściowego. W części prywatnej mamy zaprojektowane cztery pokoje sypialne w tym jeden typu master bedroom. Znajdziemy tu też wygodną, wspólną łazienkę z wanną oraz pomieszczenie techniczne z piecem CO. Klara III to atrakcyjna propozycja domu energooszczędnego, o nowoczesnym wyglądzie. To projekt domu z serii "eco" - ekonomiczny w budowie i w utrzymaniu - idealna propozycja dla rodzin planujących budowę pierwszego domu.
Konstrukcja
fundamenty: betonowe
ściany zewnętrzne: porotherm+styropian termo organika
rodzaj stropu: teriva i
elewacje: tynk strukturalny
pokrycie dachu: dachówka cem. lub cer.
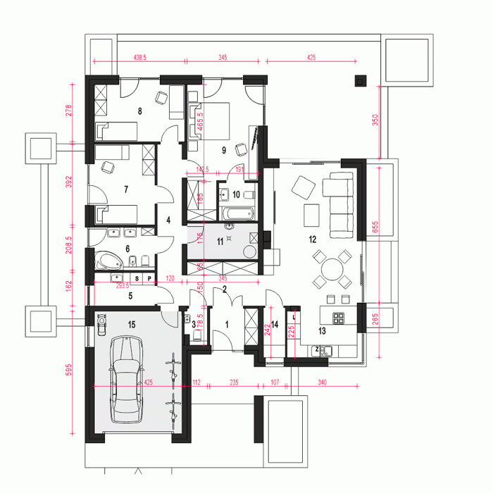
Rzuty
Parter
- m²
- 1. Wiatrołap4.1
- 2. Holl8.1
- 3. WC1.9
- 4. Komunikacja9.2
- 5. Pralnia*4.6
- 6. Łazienka6
- 7. Sypialnia11.3
- 8. Sypialnia12
- 9. Sypialnia + gardoroba18.5
- 10. Łazienka3.1
- 11. Pom. techniczne z C.O.*5.9
- 12. Salon + jadalnia29.8
- 13. Kuchnia8.2
- 14. Spiżarnia2.5
- 15. Garaż*24.8
Przekrój
Usytuowanie na działce
Dane techniczne
- Powierzchnia użytkowa114.7 m²
- Powierzchnia zabudowy192 m²
- KominekTak
- Liczba łazienek2
- Liczba pokoi4
- Powierzchnia dachu307.5 m²
- Kubatura405 m³
- Długość domu17.9 m
- Szerokość domu13.7 m
- Wysokość domu6.4 m
- Minimalne wymiary działki25.9 x 21.7m
- GarażJednostanowiskowy
- Rodzaj dachuWielospadowy
- Kąt nach. dachu25°
Instalacja grzewcza
- Instalacja grzewczaGaz
- Instalacja opcjonalna
Zawartość projektu
Zgodnie ze znowelizowaną Ustawą Prawo Budowlane art.34 ust.3, na projekt budowlany składają się trzy części:
- projekt zagospodarowania działki lub terenu
- projekt architektoniczno-budowlany
- projekt techniczny
Nasze projekty oferujemy w 3 egzemplarzach, zawierających projekt architektoniczno-budowlany i projekt techniczny. Projekt zagospodarowania działki lub terenu nie wchodzi w skład projektu oferowanego do sprzedaży. Projekt ten należy zlecić we własnym zakresie lokalnemu projektantowi, który opracuje go na podstawie danych zawartych w projekcie architektoniczno-budowlanym i technicznym, po dostosowaniu projektu do warunków lokalnych i wymagań inwestora.
UWAGA: wszystkie egzemplarze projektu zabezpieczone są hologramami, w części rysunkowej posiadają nadruki zabezpieczające w kolorze zielonym. Zalecamy aby po otrzymaniu przesyłki kontrolować czy na pierwszych stronach projektu znajduje się hologram i czy na rysunkach widoczne są w/w nadruki potwierdzające oryginalność projektu.
Wyrażamy zgodę na wszelkie zmiany zgodne z obowiązującymi przepisami pod warunkiem wprowadzenia ich przez uprawnioną osobę.
Wszystkie zmiany wymienione powyżej powinny być naniesione na oryginał projektu katalogowego trwałą techniką graficzną w kolorze czerwonym lub dołączone jako aneks i podpisane przez osobę uprawnioną dokonująca adaptacji.
**ważne informacje
Projekt w fazie koncepcji dostępny z wydłużonym terminem realizacji. Przy zamówieniu ustalamy termin i pobieramy zadatek 50% podstawowej ceny projektu (jako koszty usługi przygotowania dokumentacji do standardu projektu gotowego, w przypadku rezygnacji z usługi, zadatek nie podlega zwrotowi).
Cena za dodatkowy egzemplarz projektu jest zależna od nazwy projektu!
Polecane projekty
Dodatki
Bezpłatne dodatki
GratisZestaw umów
GratisZmiany w projekcie
GratisTablica budowy
GratisDziennik budowy
Płatne dodatki

Kosztorys - stan wykończony
540 zł

Projekt wentylacji mechanicznej
1 000 zł















