- Typ projektuWolnostojący
- Powierzchnia użytkowa114.7 m²
- Kondygnacje
- GarażJednostanowiskowy
- DachPłaski
- Kąt nach. dachu3°
- Odbicie lustrzaneTak
- Czas realizacji30 dni roboczych Zobacz więcej >
Opis
Zgodność z WT 2021 i Eurokodami
Ze względu na dostosowywanie projektu do standardu WT 2021, czas realizacji może się różnić od standardowego.
Skontaktuj się z nami aby poznać szczegóły dotyczące wybranego projektu.
Opis projektu
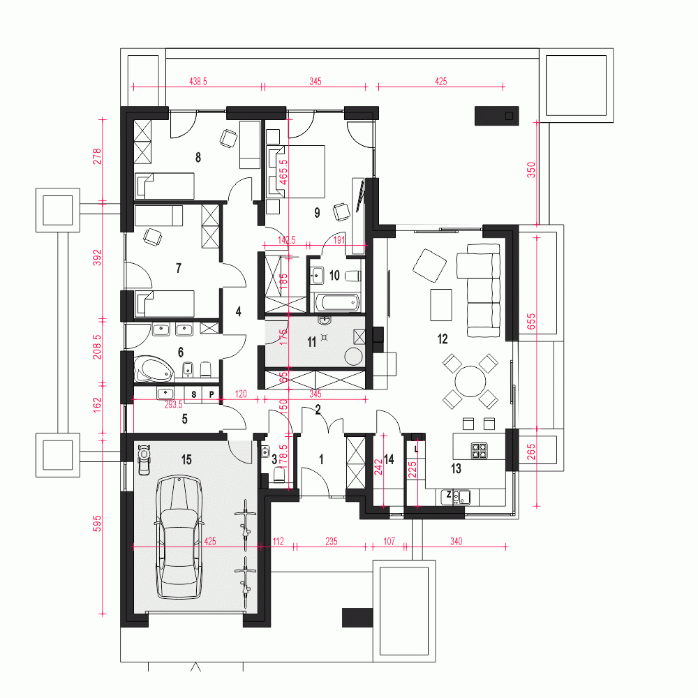
Projekt domu Klara VII z garażem to nowoczesny, parterowy dom z płaskim dachem dla 4–5-osobowej rodziny. Bazuje na układzie projektu Klara IV, różniąc się jedynie dachem. Zbudowany w technologii murowanej, jest funkcjonalny i łączy strefę dzienną z prywatną na jednym poziomie. Wejście prowadzi przez wiatrołap i hol z szafami wnękowymi, obok znajduje się pralnia i toaleta. Część dzienna obejmuje przestronny, jasny salon z jadalnią i widokiem na ogród oraz dostępem do zadaszonego tarasu przez duże drzwi tarasowe. Kuchnia z wyspą i spiżarnią ma układ w kształcie litery "L" i jest dobrze doświetlona dzięki narożnemu oknu. Część prywatna, dostępna z holu, składa się z czterech sypialni, w tym jednej głównej z garderobą i łazienką, oraz wspólnej łazienki z wanną. Jest też pomieszczenie techniczne z piecem CO.
Konstrukcja
fundamenty: betonowe
ściany zewnętrzne: porotherm+styropian termo organika
rodzaj stropu: teriva i
elewacje: tynk strukturalny
pokrycie dachu: membrana epdm
Rzuty
Parter
- m²
- 1. Wiatrołap4.1
- 2. Holl8.1
- 3. WC1.9
- 4. Komunikacja9.2
- 5. Pralnia*4.6
- 6. Łazienka6
- 7. Sypialnia11.3
- 8. Sypialnia12
- 9. Sypialnia + gardoroba18.5
- 10. Łazienka3.1
- 11. Pom. techniczne z C.O.*5.9
- 12. Salon + jadalnia29.8
- 13. Kuchnia8.2
- 14. Spiżarnia2.5
- 15. Garaż*24.8
Przekrój
Usytuowanie na działce
Dane techniczne
- Powierzchnia użytkowa114.7 m²
- Powierzchnia zabudowy192 m²
- KominekTak
- Liczba łazienek2
- Liczba pokoi4
- Kubatura405 m³
- Długość domu18.3 m
- Szerokość domu14.1 m
- Wysokość domu4.5 m
- Minimalne wymiary działki26.3 x 22.1m
- GarażJednostanowiskowy
- Rodzaj dachuPłaski
- Kąt nach. dachu3°
Instalacja grzewcza
- Instalacja grzewczaGaz
- Instalacja opcjonalna
Zawartość projektu
Zgodnie ze znowelizowaną Ustawą Prawo Budowlane art.34 ust.3, na projekt budowlany składają się trzy części:
- projekt zagospodarowania działki lub terenu
- projekt architektoniczno-budowlany
- projekt techniczny
Nasze projekty oferujemy w 3 egzemplarzach, zawierających projekt architektoniczno-budowlany i projekt techniczny. Projekt zagospodarowania działki lub terenu nie wchodzi w skład projektu oferowanego do sprzedaży. Projekt ten należy zlecić we własnym zakresie lokalnemu projektantowi, który opracuje go na podstawie danych zawartych w projekcie architektoniczno-budowlanym i technicznym, po dostosowaniu projektu do warunków lokalnych i wymagań inwestora.
UWAGA: wszystkie egzemplarze projektu zabezpieczone są hologramami, w części rysunkowej posiadają nadruki zabezpieczające w kolorze zielonym. Zalecamy aby po otrzymaniu przesyłki kontrolować czy na pierwszych stronach projektu znajduje się hologram i czy na rysunkach widoczne są w/w nadruki potwierdzające oryginalność projektu.
Wyrażamy zgodę na wszelkie zmiany zgodne z obowiązującymi przepisami pod warunkiem wprowadzenia ich przez uprawnioną osobę.
Wszystkie zmiany wymienione powyżej powinny być naniesione na oryginał projektu katalogowego trwałą techniką graficzną w kolorze czerwonym lub dołączone jako aneks i podpisane przez osobę uprawnioną dokonująca adaptacji.
**ważne informacje
Projekt w fazie koncepcji dostępny z wydłużonym terminem realizacji. Przy zamówieniu ustalamy termin i pobieramy zadatek 50% podstawowej ceny projektu (jako koszty usługi przygotowania dokumentacji do standardu projektu gotowego, w przypadku rezygnacji z usługi, zadatek nie podlega zwrotowi).
Cena za dodatkowy egzemplarz projektu jest zależna od nazwy projektu!
Polecane projekty
Dodatki
Bezpłatne dodatki
GratisZestaw umów
GratisZmiany w projekcie
GratisTablica budowy
GratisDziennik budowy
Płatne dodatki

Kosztorys - stan wykończony
540 zł

Projekt wentylacji mechanicznej
1 000 zł















