Projekt domu Majka II z garażem
Promocja ważna do
24-04-2026
- Typ projektuWolnostojący
- Powierzchnia użytkowa100.9 m²
- Kondygnacje
- GarażJednostanowiskowy
- DachDwuspadowy
- Kąt nach. dachu30°
- Odbicie lustrzaneTak
- Czas realizacji40 dni roboczych Zobacz więcej >
Opis
Zgodność z WT 2021 i Eurokodami
Ze względu na dostosowywanie projektu do standardu WT 2021, czas realizacji może się różnić od standardowego.
Skontaktuj się z nami aby poznać szczegóły dotyczące wybranego projektu.
Opis projektu
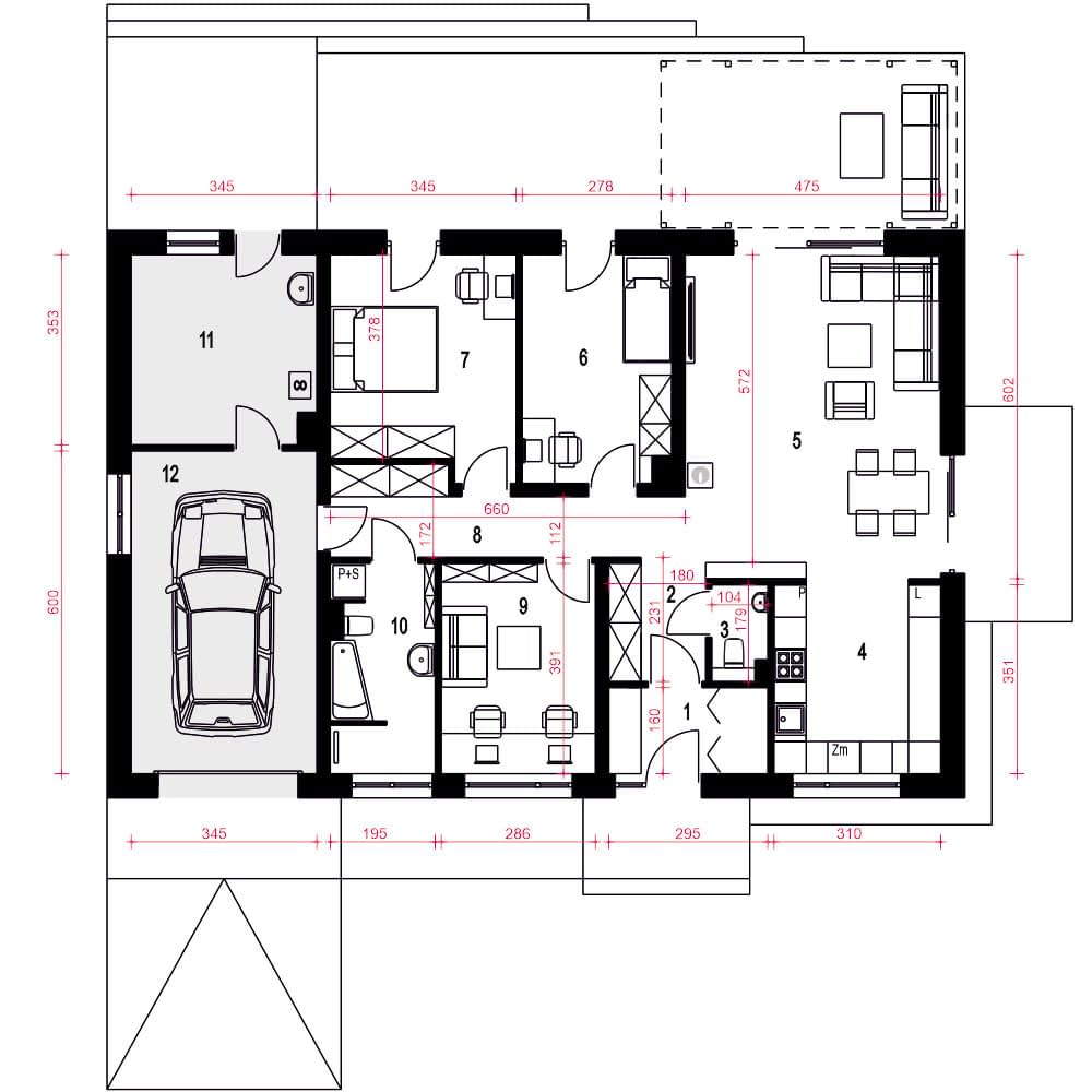
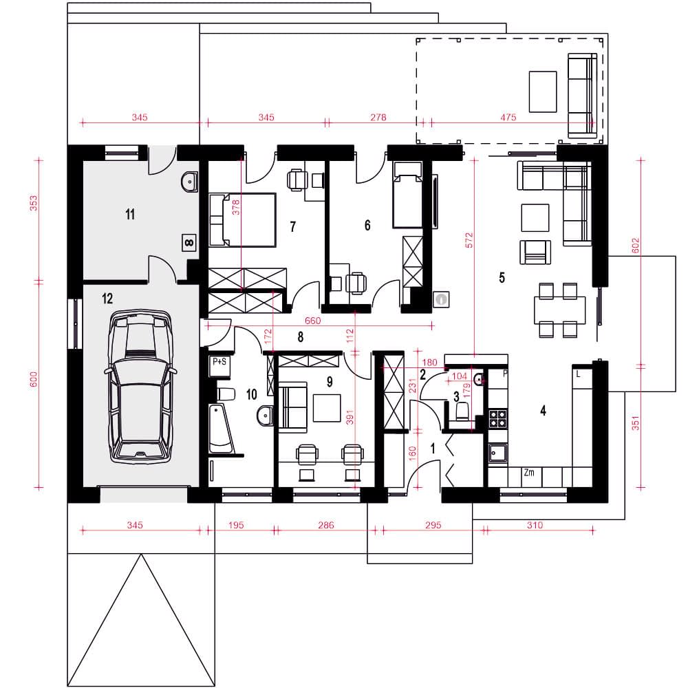
Majka II to projekt wygodnego domu jednorodzinnego z dachem dwuspadowym. Charakteryzuje się estetycznym wyglądem i komfortowymi warunkami dla czteroosobowej rodziny. Jego wszechstronny design sprawia, że pasuje zarówno do nowych osiedli, jak i istniejącej zabudowy. Główne wejście prowadzi do wiatrołapu z szafami i WC, dalej do holu i strefy dziennej z salonem, kuchnią i jadalnią. Te pomieszczenia tworzą jedną przestrzeń z kominkiem i wyjściami na taras. Strefa prywatna obejmuje trzy sypialnie i łazienkę. Korytarz prowadzi do garażu i części technicznej budynku z szafą wnękową. Na poddaszu znajdują się przestrzeń nieużtkowa (strych).Projekt ten oferuje ekonomiczny i ekologiczny dom, łatwy w budowie i eksploatacji, z uniwersalną architekturą.
Konstrukcja
fundamenty: betonowe
ściany zewnętrzne:: porotherm+styropian
ściany wewnętrzne:: porotherm
rodzaj stropu i konstrukcja dachu:: wiązary prefabrykowane mitek
elewacje: tynk strukturalny, okładzina drewniana, ceramiczna
pokrycie dachu: dachówka cementowa lub ceramiczna
Rzuty
Parter
Dane techniczne
- Powierzchnia użytkowa100.9 m²
- Powierzchnia zabudowy169.1 m²
- KominekTak
- Liczba łazienek1
- Liczba pokoi4
- Powierzchnia dachu236 m²
- Kubatura360 m³
- Długość domu11 m
- Szerokość domu16 m
- Wysokość domu7 m
- Minimalne wymiary działki19 x 24m
- GarażJednostanowiskowy
- Rodzaj dachuDwuspadowy
- Kąt nach. dachu30°
Instalacja grzewcza
- Instalacja grzewczaGaz
- Instalacja opcjonalna
Zawartość projektu
Zgodnie ze znowelizowaną Ustawą Prawo Budowlane art.34 ust.3, na projekt budowlany składają się trzy części:
- projekt zagospodarowania działki lub terenu
- projekt architektoniczno-budowlany
- projekt techniczny
Nasze projekty oferujemy w 3 egzemplarzach, zawierających projekt architektoniczno-budowlany i projekt techniczny. Projekt zagospodarowania działki lub terenu nie wchodzi w skład projektu oferowanego do sprzedaży. Projekt ten należy zlecić we własnym zakresie lokalnemu projektantowi, który opracuje go na podstawie danych zawartych w projekcie architektoniczno-budowlanym i technicznym, po dostosowaniu projektu do warunków lokalnych i wymagań inwestora.
UWAGA: wszystkie egzemplarze projektu zabezpieczone są hologramami, w części rysunkowej posiadają nadruki zabezpieczające w kolorze zielonym. Zalecamy aby po otrzymaniu przesyłki kontrolować czy na pierwszych stronach projektu znajduje się hologram i czy na rysunkach widoczne są w/w nadruki potwierdzające oryginalność projektu.
Wyrażamy zgodę na wszelkie zmiany zgodne z obowiązującymi przepisami pod warunkiem wprowadzenia ich przez uprawnioną osobę.
Wszystkie zmiany wymienione powyżej powinny być naniesione na oryginał projektu katalogowego trwałą techniką graficzną w kolorze czerwonym lub dołączone jako aneks i podpisane przez osobę uprawnioną dokonująca adaptacji.
**ważne informacje
Projekt w fazie koncepcji dostępny z wydłużonym terminem realizacji. Przy zamówieniu ustalamy termin i pobieramy zadatek 50% podstawowej ceny projektu (jako koszty usługi przygotowania dokumentacji do standardu projektu gotowego, w przypadku rezygnacji z usługi, zadatek nie podlega zwrotowi).
Cena za dodatkowy egzemplarz projektu jest zależna od nazwy projektu!
Dodatki
Bezpłatne dodatki
GratisZestaw umów
GratisZmiany w projekcie
GratisTablica budowy
GratisDziennik budowy
Płatne dodatki

Kosztorys - stan wykończony
540 zł

Projekt wentylacji mechanicznej
1 000 zł










