Projekt domu Wygodny z garażem
Promocja ważna do
24-04-2026
- Typ projektuWolnostojący
- Powierzchnia użytkowa139.8 m²
- Kondygnacje
- GarażJednostanowiskowy
- DachDwuspadowy
- Kąt nach. dachu45°
- Odbicie lustrzaneTak
- Czas realizacjimax. czas realizacji 10 dni Zobacz więcej >
Opis
Zgodność z WT 2021 i Eurokodami
Ze względu na dostosowywanie projektu do standardu WT 2021, czas realizacji może się różnić od standardowego.
Skontaktuj się z nami aby poznać szczegóły dotyczące wybranego projektu.
Opis projektu
Wygodny z garażem to projekt nowoczesnego domu typu stodoła, z poddaszem użytkowym dla osób poszukujących funkcjonalnego domu mieszkalnego. To projekt o prostej bryle z dużymi przeszkleniami w strefie ogrodowej, z elewacją z okładziny ceramicznej i z drewnem, dachem pokrytymi blachą. Na funkcję budynku składa się parter, gdzie przewidziano wygodną główną sypialnię z garderobą i łazienką, wygodną kuchnię z salonem i jadalnią. Z salonu zaprojektowano wyjście na obszerny taras ogrodowy. Od frontu zaprojektowano wygodny garaż jedno stanowiskowy z płaskim dachem. Na poddaszu przewidziano dużą antresolę, łazienkę i dwa pokoje sypialne. Dom idealnie wpisze się w każdy krajobraz, ale dzięki kolorystyce i materiałom zastosowanym na elewacji będzie się idealnie komponował w otoczeniu natury. Dzięki zastosowaniu pompy ciepła i wentylacji mechanicznej oraz dzięki rozwiązaniom energooszczędnym w tym odpowiedniej grubości izolacji termicznej oraz dzięki ciepłemu montażowi stolarki, dom powinien być ekonomiczny w użytkowaniu.
Konstrukcja
fundamenty: betonowe
ściany zewnętrzne: porotherm+styropian termo organika
rodzaj stropu: żelbetowy
elewacje: tynk, okładzina ceramiczna/okładzina drewniana
pokrycie dachu: blacha
Rzuty
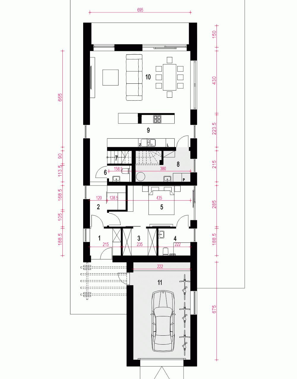
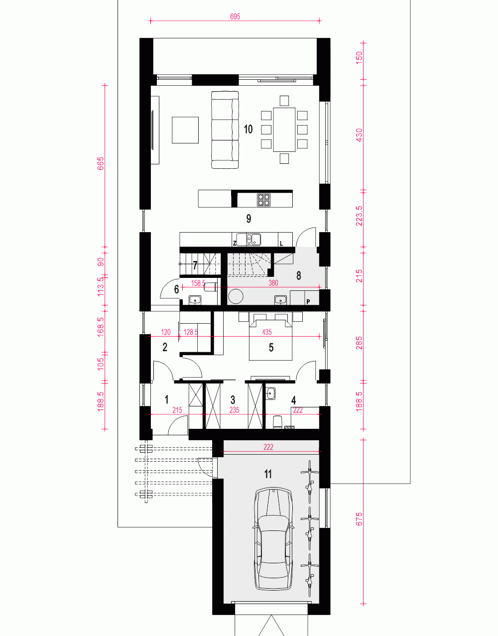
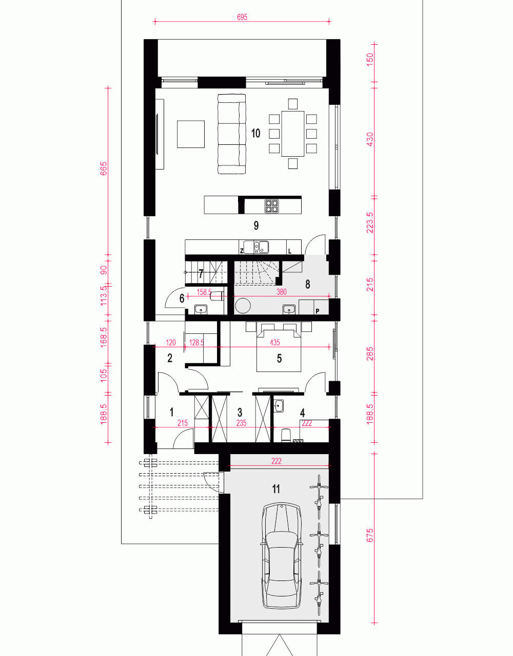
Parter
- m²
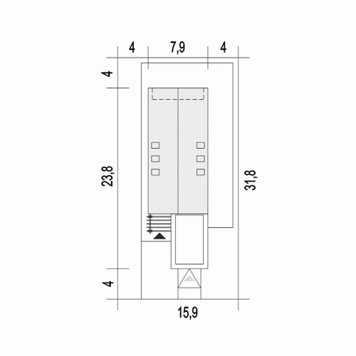
- 1. Wiatrołap3.9
- 2. Hol8.6
- 3. Garderoba4.2
- 4. Łazienka4.1
- 5. Sypialnia13.5
- 6. Toaleta1.7
- 7. Schody3.5
- 8. Pom. gospod. + C.O.*7.1
- 9. Kuchnia15.9
- 10. Salon + jadalnia29.5
- 11. Garaż*26.7
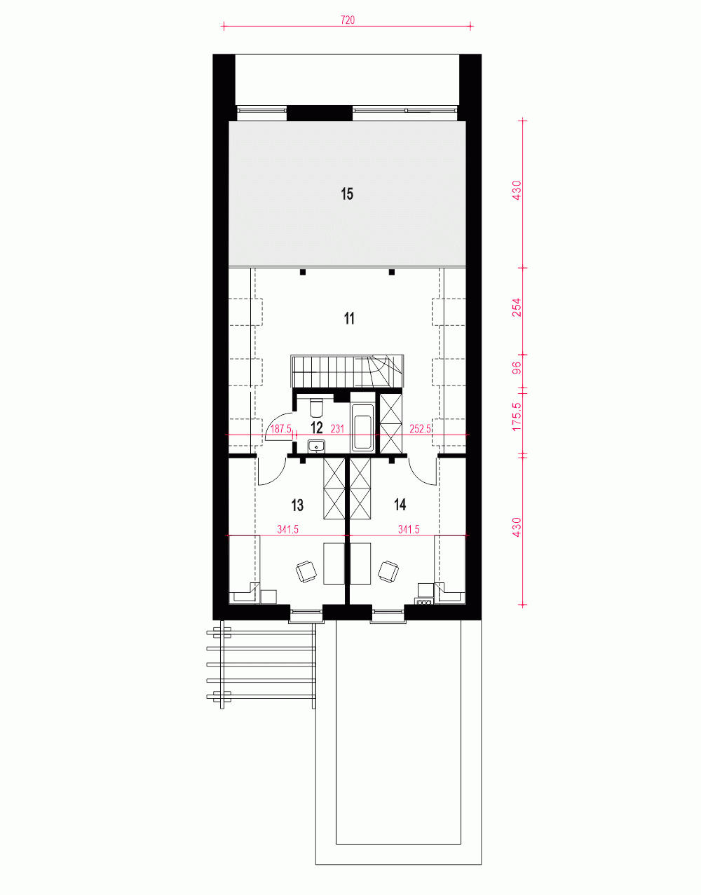
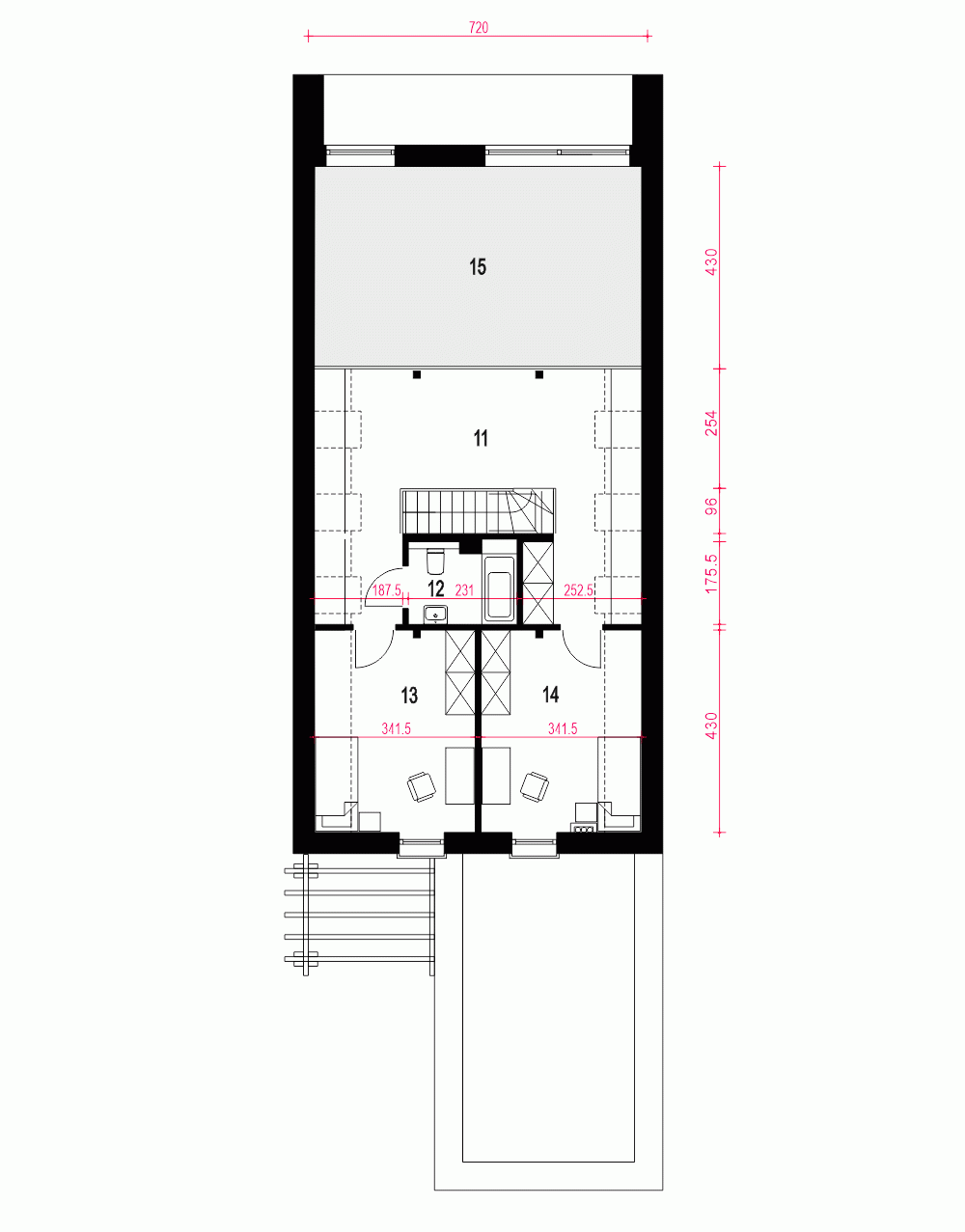
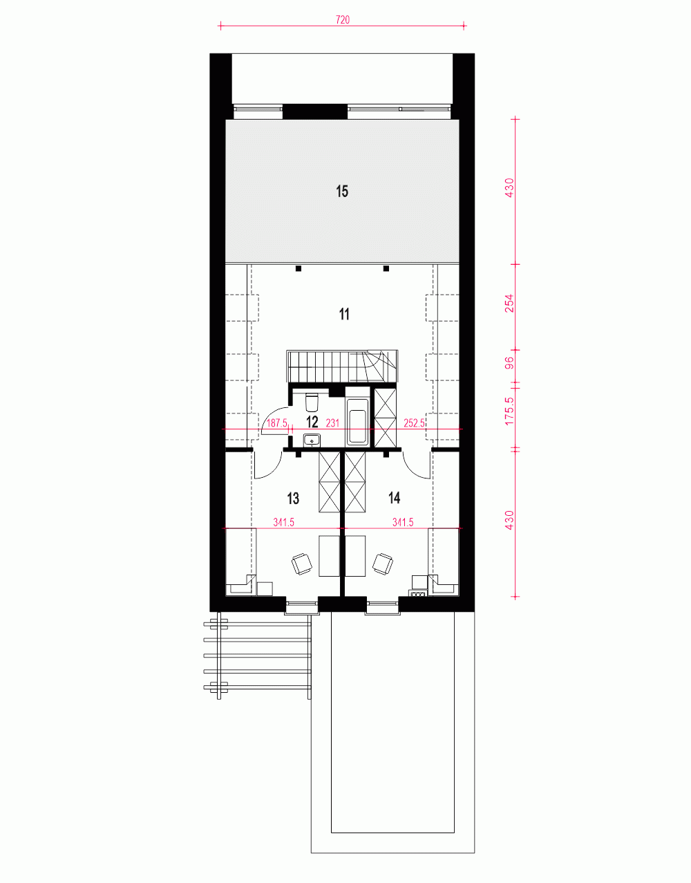
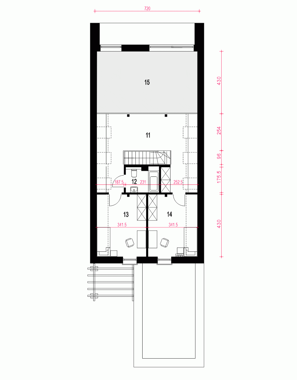
Piętro
Przekrój
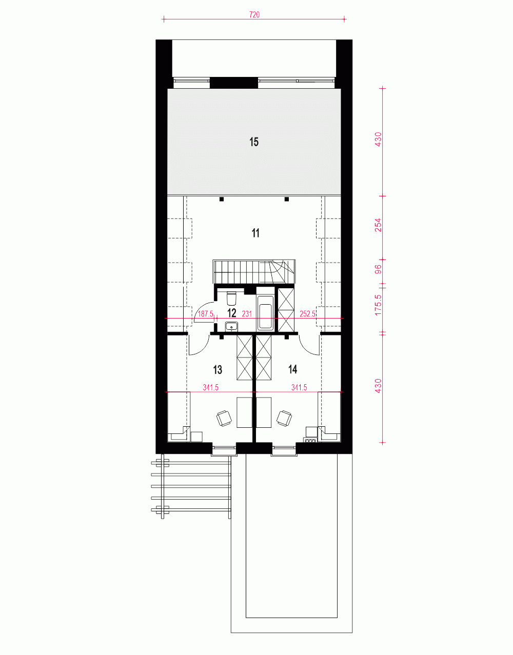
Usytuowanie na działce
Dane techniczne
- Powierzchnia użytkowa139.8 m²
- Powierzchnia zabudowy156 m²
- KominekTak
- Liczba łazienek2
- Liczba pokoi4
- Powierzchnia dachu184 m²
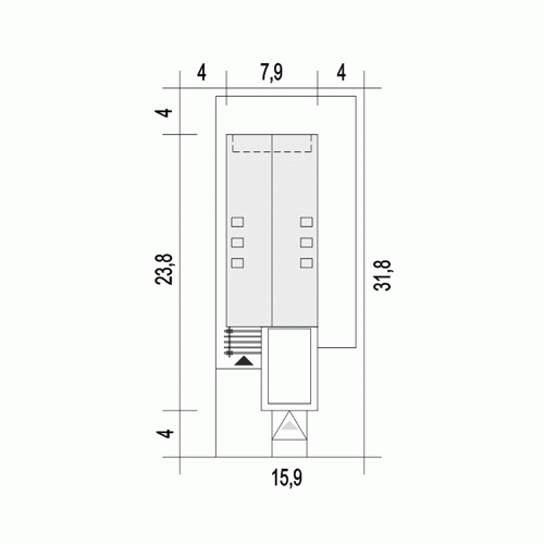
- Długość domu23.8 m
- Szerokość domu7.9 m
- Wysokość domu9 m
- Minimalne wymiary działki31.8 x 15.9m
- GarażJednostanowiskowy
- Rodzaj dachuDwuspadowy
- Kąt nach. dachu45°
Instalacja grzewcza
- Instalacja grzewczaGaz
Zawartość projektu
Zgodnie ze znowelizowaną Ustawą Prawo Budowlane art.34 ust.3, na projekt budowlany składają się trzy części:
- projekt zagospodarowania działki lub terenu
- projekt architektoniczno-budowlany
- projekt techniczny
Nasze projekty oferujemy w 3 egzemplarzach, zawierających projekt architektoniczno-budowlany i projekt techniczny. Projekt zagospodarowania działki lub terenu nie wchodzi w skład projektu oferowanego do sprzedaży. Projekt ten należy zlecić we własnym zakresie lokalnemu projektantowi, który opracuje go na podstawie danych zawartych w projekcie architektoniczno-budowlanym i technicznym, po dostosowaniu projektu do warunków lokalnych i wymagań inwestora.
UWAGA: wszystkie egzemplarze projektu zabezpieczone są hologramami, w części rysunkowej posiadają nadruki zabezpieczające w kolorze zielonym. Zalecamy aby po otrzymaniu przesyłki kontrolować czy na pierwszych stronach projektu znajduje się hologram i czy na rysunkach widoczne są w/w nadruki potwierdzające oryginalność projektu.
Wyrażamy zgodę na wszelkie zmiany zgodne z obowiązującymi przepisami pod warunkiem wprowadzenia ich przez uprawnioną osobę.
Wszystkie zmiany wymienione powyżej powinny być naniesione na oryginał projektu katalogowego trwałą techniką graficzną w kolorze czerwonym lub dołączone jako aneks i podpisane przez osobę uprawnioną dokonująca adaptacji.
**ważne informacje
Projekt w fazie koncepcji dostępny z wydłużonym terminem realizacji. Przy zamówieniu ustalamy termin i pobieramy zadatek 50% podstawowej ceny projektu (jako koszty usługi przygotowania dokumentacji do standardu projektu gotowego, w przypadku rezygnacji z usługi, zadatek nie podlega zwrotowi).
Cena za dodatkowy egzemplarz projektu jest zależna od nazwy projektu!
Polecane projekty
Dodatki
Bezpłatne dodatki
GratisZestaw umów
GratisZmiany w projekcie
GratisTablica budowy
GratisDziennik budowy
Płatne dodatki

Kosztorys - stan wykończony
540 zł

Projekt wentylacji mechanicznej
1 000 zł


















