- Typ projektuWolnostojący
- Powierzchnia użytkowa118.51 m²
- KondygnacjeParterowy, z poddaszem
- GarażJednostanowiskowy
- DachDwuspadowy
- Kąt nach. dachu35°
- Odbicie lustrzaneNie
- Czas realizacjimax. czas realizacji 10 dni Zobacz więcej >
Opis
Zgodność z WT 2021 i Eurokodami
Ze względu na dostosowywanie projektu do standardu WT 2021, czas realizacji może się różnić od standardowego.
Skontaktuj się z nami aby poznać szczegóły dotyczące wybranego projektu.
Opis projektu
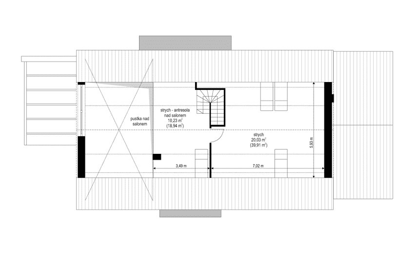
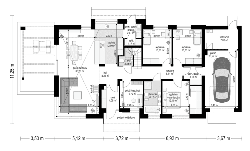
Projekt domu Wymarzony 8 to kolejny dom z serii projektów „Wymarzonych” z naszej pracowni. Budynek został zaprojektowany w modnej stylistyce „domu-stodoły”. Dom jest parterowy z poddaszem. Przykryty został dwuspadowym dachem o kącie nachylenia 35 stopni. Dach nie ma okapów, bryła jest maksymalnie prosta, nowoczesna, z dostawionymi od frontu i tyłu pudełkowymi zadaszeniami kryjącymi wejście i wykusz kuchni. W projekcie zastosowano ciekawe detale i materiały uatrakcyjniające wygląd zewnętrzny. Połączenie dachu krytego blachą na rąbek stojący, białych ścian, szarych okładzin i drewnianych ram stolarki okiennej dają świetny efekt wizualny. Dom Wymarzony 8 jest nowoczesny, prosty, a zarazem elegancki i reprezentacyjny. Głównym detalem wyróżniającym elewację frontową jest część wejściowa, z podestem, ciekawym pudełkowym zadaszeniem i drzwiami wejściowymi z naświetlami. Od strony elewacji tylnej zabieg ten powtórzono w wykuszu kuchni. Niewątpliwie najciekawszy jest szczyt domu z oknem biegnącym przez całą wysokość elewacji, które doświetla salon z pustką i antresolą, otwierając wnętrze na taras z pergolą i ogród. Dom zaprojektowano w taki sposób, aby salon miał doświetlenie z trzech stron budynku, co pozwala lokalizować go na niekorzystnej działce - z wjazdem od południa, czy z ogrodem z boku. Projektując wnętrze staraliśmy się sprostać zasadniczemu zadaniu - zmieścić wygodne cztery pokoje + salon, oraz wszystkie potrzebne pomieszczenia dodatkowe. Do domu wchodzimy wygodnym przedsionkiem wprost do części dziennej, z salonem, jadalnią i częściowo zamkniętą półwyspem kuchnią. Kuchnia połączona jest ze spiżarką, oraz pralnią z wyjściem gospodarczym na tył domu. Z drugiej strony domu mamy trzy sypialnie, w tym sypialnię rodziców z garderoba, łazienkę i dodatkowy pokój – gabinet lub extra sypialnię. Przez podwójne drzwi i dodatkowy korytarz dom łączy się z garażem i kotłownią. Nad parterem zaprojektowano poddasze, składające się z pustki nad salonem, następnie antresoli ze schodami będącej przedłużeniem salonu na dole, oraz z dodatkowej przestrzeni strychu-poddasza, którą można pozostawić jako strych (magazyn), albo zamienić na dodatkowe pokoje użytkowe - wedle życzenia właściciela. Projekt domu Wymarzony 8 to komfortowy, wygodny dom o nowoczesnej i atrakcyjnej architekturze, przeznaczony dla cztero- pięcioosobowej rodziny. Budynek jest energooszczędny, ma prostą konstrukcję, będzie łatwy w budowie i tani w utrzymaniu. Zapraszamy do zapoznania się z pełną ofertą pracowni MG Projekt tej serii: Wymarzony, Wymarzony 2, Wymarzony 3, Wymarzony 4, Wymarzony 5, Wymarzony 6, Wymarzony 7, Wymarzony 9, Wymarzony 10, Wymarzony 11.
Konstrukcja
- Fundamentybetonowe ławy i ściany fundamentowe z bloczków betonowych
- Ściany zewnętrzneściany murowane - bloczki gazobetonowe gr. 24 cm + styropian + tynk cienkowarstwowy
- Stropmonolityczny betonowy
- Elewacjetynk cienkowarstwowy
- Pokrycie dachublacha na rąbek
Rzuty
Dane techniczne
- Powierzchnia użytkowa118.51 m²
- Powierzchnia netto125.51 m²
- Powierzchnia zabudowy186.96 m²
- KominekTak
- Liczba łazienek2
- Liczba pokoi4
- Powierzchnia dachu233.8 m²
- Kubatura947 m³
- Długość domu11.25 m
- Szerokość domu22.93 m
- Wysokość domu7.02 m
- Poddaszestrych
- Minimalne wymiary działki19.25 x 28.93m
- GarażJednostanowiskowy
- Rodzaj dachuDwuspadowy
- Kąt nach. dachu35°
Koszty budowy
- Stan surowy207418 zł
- Stan surowy zamknięty309712 zł
- Koszt wykończenia317131 zł
- Koszt instalacji117686 zł
Zawartość projektu
W komplecie nowej wersji dokumentacji projektowej znajdują się 3 egzemplarze projektu architektoniczno-budowlanego oraz 3 egzemplarze projektu technicznego
Projekt architektoniczno-budowlany zawierający:
-opis architektoniczny z elementami konstrukcji,
-część rysunkowa: rzut parteru, poddasza/piętra, rzut dachu w skali 1:100, przekroje skala 1:50,
elewacje skala 1:100.
Projekt techniczny zawierający:
-opis techniczny i konstrukcyjny (obliczenia statyczne - w zależności od projektu włączone w projekt lub stanowiące odrębną teczkę).
Część rysunkowa architektura i konstrukcja:
-rzuty fundamentów, parteru, poddasza, stropu, więźby, dachu / w skali 1:50,
-przekroje przez budynek / budynek skali 1:50,
-elewacje budynku / w skali 1:50 (*niektóre projekty posiadają rysunki w skali 1:100 lub 1:75),
-zestawienie stolarki budowlanej okiennej i drzwiowej,
-szczegóły konstrukcji i ewentualne szczegóły budowlane,
Część instalacyjna:
-część opisowa do projektów instalacji elektrycznych, wodno-kanalizacyjnych, grzewczych, gazowych (jeśli występują).
Część rysunkowa do projektów instalacji:
-schematy instalacji elektrycznych, schemat rozdzielni, plan instalacji odgromowej,
-schematy instalacji wodno-kanalizacyjnej i ciepłej wody,
-schematy instalacji grzewczych,
-schemat instalacji gazowej (jeśli występują).
Do projektu dołączane jest zestawienie materiałowe, z wykazem elementów drewnianych oraz stali budowlanej.
Do projektu dołączone są kopie uprawnień wszystkich projektantów, oraz aktualne zaświadczenia o przynależności do izb zawodowych.
Projekt zawiera oświadczenie projektantów o poprawności projektu w świetle Prawa Budowlanego, a także zawiera informację dotyczącą bezpieczeństwa i ochrony zdrowia ( BIOZ).
Do projektu dołączona jest także zgoda na zmiany adaptacyjne. Zgoda dołączana jest do każdego projektu bezpłatnie. Na Państwa życzenie zakres zgody na zmiany możemy dowolnie rozszerzyć.
Pracownia zezwala na następujące zmiany i odstępstwa od projektu architektoniczno-budowlanego w trakcie jego przystosowywania do lokalizacji:
- Zmianę obrysu zewnętrznego ścian zewnętrznych.
- Zmianę obrysu wewnętrznego ścian zewnętrznych.
- Zmianę układu ścian wewnętrznych działowych.
- Zmianę funkcji, ilości i usytuowania poszczególnych pomieszczeń na dowolnej kondygnacji w projekcie.
- Zmianę ukształtowania, ilości i kąta nachylenia połaci dachowych.
- Zmianę ilości, umiejscowienia i wielkości otworów okiennych i drzwiowych.
- Zmianę rodzaju materiału i technologii wykonania ścian zewnętrznych oraz wewnętrznych oraz ścian fundamentowych.
- Zmianę rodzaju i technologii wykonania stropów nad dowolną kondygnacją.
- Zmianę umiejscowienia, kształtu i materiału wykonania schodów w budynku.
- Zmianę wielkości, kształtu i materiałów, bądź likwidacja: tarasów, podestów i balkonów.
- Likwidację lub dodanie dowolnej ilości:
- lukarn,
- wykuszy,
- podcieni,
- balkonów,
- loggii,
- kolumn,
- pilastrów,
- ganków,
- werand.
- Zmianę materiałów wykończeniowych, instalacyjnych, izolacyjnych.
- Zmianę rodzaju pokrycia dachowego.
- Doprojektowanie bądź likwidacja podpiwniczenia - częściowego lub całkowitego.
Polecane projekty
Dodatki
Bezpłatne dodatki
GratisZestaw umów
GratisZmiany w projekcie
PromocjaProjekt szamba szczelnego
GratisTablica budowy
GratisDziennik budowy
Płatne dodatki

Pakiet wentylacja mechaniczna i kominek DGP
550 zł

Kosztorys inwestorski
600 zł

Pakiet odkurzacz centralny
550 zł

Wersja elektroniczna projektu
600 zł

Pakiet instalacja solarna
550 zł

Pakiet ogrzewanie podłogowe
550 zł

Pakiet powietrzna pompa ciepła
550 zł

Pakiet płaszcz wodny
550 zł

Pakiet kotłownia na paliwo stałe
550 zł

Pakiet klimatyzacja w domu
550 zł

Projekt ogrodzenia
750 zł

Pakiet instalacja fotowoltaiczna
550 zł

Pakiet kominek z DGP
500 zł

Pakiet gruntowa pompa ciepła
550 zł

Projekt altan i grilów ogrodowych
850 zł

Dodatkowy egzemplarz do projektu
650 zł



















