Promocja ważna do
24-04-2026
- Typ projektuWolnostojący
- Powierzchnia użytkowa97.5 m²
- Kondygnacje
- GarażBez garażu
- DachDwuspadowy
- Kąt nach. dachu45°
- Odbicie lustrzaneTak
- Czas realizacjimax. czas realizacji 10 dni Zobacz więcej >
Opis
Zgodność z WT 2021 i Eurokodami
Ze względu na dostosowywanie projektu do standardu WT 2021, czas realizacji może się różnić od standardowego.
Skontaktuj się z nami aby poznać szczegóły dotyczące wybranego projektu.
Opis projektu
Projekt domu jednorodzinnego z poddaszem użytkowym dla 4 osobowej rodziny. Prosta bryła jest przekryta dwuspadowym dachem o kącie nachylenia 45 stopni. Dzięki nieskomplikowanej bryle dom będzie tani i prosty w budowie i eksploatacji.Charakter budynku podkreślają wykończenia elewacji okładzina kamienna oraz drewniane wykończenia.Salon z jadalnią nie ma sufitu podwieszanego i jest otwarty aż do dachu. W salonie przewidziano kominek.Kuchnia jest otwarta i umeblowana w kształcie litery L . Obok kuchni zaproponowano stół jadalny.W strefie wejściowej zaprojektowano duży hol, do którego prowadzi wiatrołap. Hol rozprowadza do garderoby, pomieszczenia technicznego, WC, pokoju dla dwóch osób oraz na poddasze. Dwuosobowa sypialnia posiada indywidualna przejściową garderobę oraz niewielka łazienkę z natryskiem.Na poddaszu mamy dwie sypialne oraz łazienkę z pralnia i suszarnią.Projekt Ziomek dedykowany jest szczególnie na tereny podmiejskie, do nowej i starej zabudowy
Konstrukcja
fundamenty: betonowe
ściany zewnętrzne: porotherm+styropian termo organika
ściany wewnętrzne: porotherm
rodzaj stropu: teriva
elewacje: tynk strukturalny, cegła klinkierowa
pokrycie dachu: dachówka ceramiczna
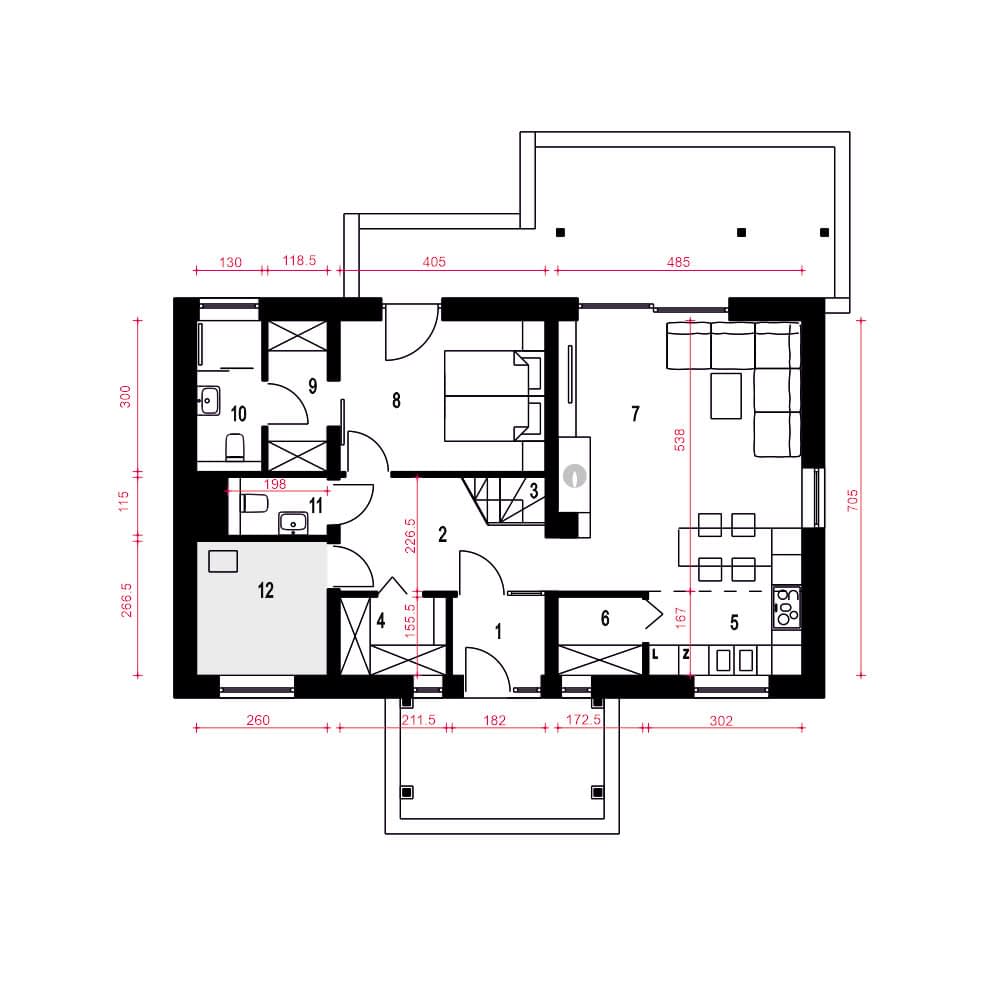
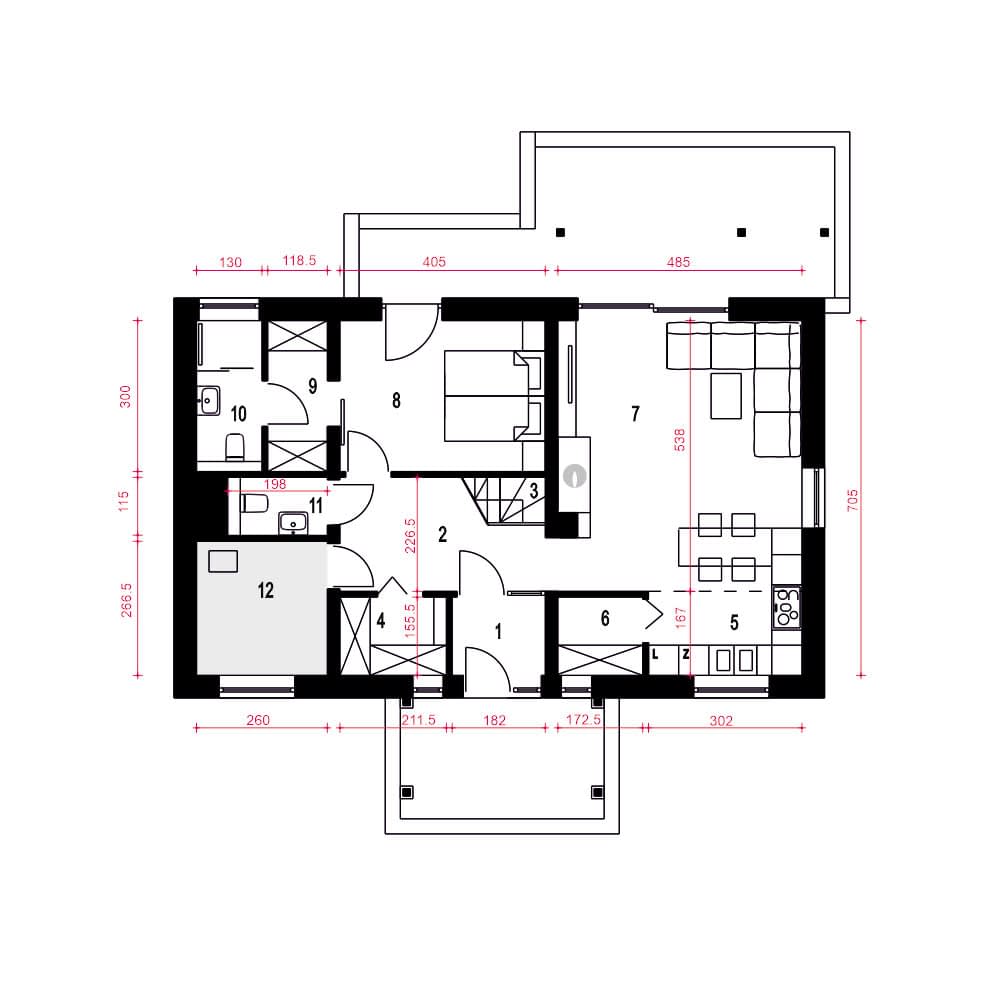
Rzuty
Parter
- m²
- 1. Wiatrołap2.7
- 2. Hol6.8
- 3. Schody3.4
- 4. Garderoba3.2
- 5. Kuchnia5
- 6. Spiżarnia2.6
- 7. Salon25.6
- 8. Pokój11.9
- 9. Garderoba3.4
- 10. Łazienka3.8
- 11. WC2.2
- 12. Pom. tech. CO*6.8
Piętro
Dane techniczne
- Powierzchnia użytkowa97.5 m²
- Powierzchnia zabudowy103.2 m²
- KominekTak
- Liczba łazienek2
- Liczba pokoi4
- Powierzchnia dachu202.5 m²
- Kubatura314 m³
- Długość domu8 m
- Szerokość domu13 m
- Wysokość domu8.2 m
- Minimalne wymiary działki16 x 21m
- GarażBez garażu
- Rodzaj dachuDwuspadowy
- Kąt nach. dachu45°
Instalacja grzewcza
- Instalacja grzewczaGaz, Paliwo stałe
Zawartość projektu
Zgodnie ze znowelizowaną Ustawą Prawo Budowlane art.34 ust.3, na projekt budowlany składają się trzy części:
- projekt zagospodarowania działki lub terenu
- projekt architektoniczno-budowlany
- projekt techniczny
Nasze projekty oferujemy w 3 egzemplarzach, zawierających projekt architektoniczno-budowlany i projekt techniczny. Projekt zagospodarowania działki lub terenu nie wchodzi w skład projektu oferowanego do sprzedaży. Projekt ten należy zlecić we własnym zakresie lokalnemu projektantowi, który opracuje go na podstawie danych zawartych w projekcie architektoniczno-budowlanym i technicznym, po dostosowaniu projektu do warunków lokalnych i wymagań inwestora.
UWAGA: wszystkie egzemplarze projektu zabezpieczone są hologramami, w części rysunkowej posiadają nadruki zabezpieczające w kolorze zielonym. Zalecamy aby po otrzymaniu przesyłki kontrolować czy na pierwszych stronach projektu znajduje się hologram i czy na rysunkach widoczne są w/w nadruki potwierdzające oryginalność projektu.
Wyrażamy zgodę na wszelkie zmiany zgodne z obowiązującymi przepisami pod warunkiem wprowadzenia ich przez uprawnioną osobę.
Wszystkie zmiany wymienione powyżej powinny być naniesione na oryginał projektu katalogowego trwałą techniką graficzną w kolorze czerwonym lub dołączone jako aneks i podpisane przez osobę uprawnioną dokonująca adaptacji.
**ważne informacje
Projekt w fazie koncepcji dostępny z wydłużonym terminem realizacji. Przy zamówieniu ustalamy termin i pobieramy zadatek 50% podstawowej ceny projektu (jako koszty usługi przygotowania dokumentacji do standardu projektu gotowego, w przypadku rezygnacji z usługi, zadatek nie podlega zwrotowi).
Cena za dodatkowy egzemplarz projektu jest zależna od nazwy projektu!
Dodatki
Bezpłatne dodatki
GratisZestaw umów
GratisZmiany w projekcie
GratisTablica budowy
GratisDziennik budowy
Płatne dodatki

Kosztorys - stan wykończony
540 zł

Projekt wentylacji mechanicznej
1 000 zł










